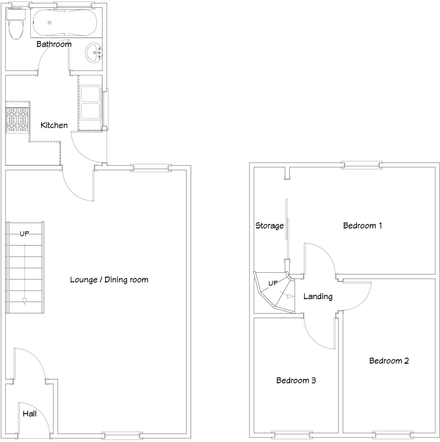
**Standout Features:**
- 3 bedrooms in a central town location
- Recently decorated throughout (flooring omitted for personalization)
- No chain; great price reduction
- UPVC double-glazed windows and fitted storage options
- Open-plan lounge/dining area, perfect for families
- Convenient access to schools, shops, and transport links for commuters
Discover an excellent opportunity for first-time buyers or families in this charming three-bedroom terraced house located on Grove Street, Newbridge, NP11. This traditional Victorian property exudes character with its stone facade and offers a large open-plan lounge/dining space, ideal for family gatherings or entertaining guests. The fitted kitchen boasts essential appliances and has access to a rear garden, while the modern family bathroom ensures comfort and convenience.
The advantages of living here extend beyond the property itself. With its town center location, you’ll enjoy easy access to local amenities, schools, and leisure facilities, making this home a perfect fit for those seeking a vibrant community life. Commuters will appreciate the proximity to the railway station, offering a direct route to Cardiff and Newport.
Though it requires new flooring to complete your vision, this home is ready for you to personalize. Perfectly positioned and chain-free, this property won't be available for long at this exceptional price of £135,000. Embrace the chance to create your ideal living space in a welcoming community—schedule a viewing today and envision your future here!
3 bedroom end of terrace house for sale in Blaen Blodau Street, NEWBRIDGE, NP11 — £137,500 • 3 bed • 1 bath • 528 ft²
3 bedroom terraced house for sale in Hill Street, NEWBRIDGE, NP11 — £129,995 • 3 bed • 1 bath • 777 ft²
3 bedroom terraced house for sale in Torlais Street, NP11 — £89,950 • 3 bed • 1 bath • 646 ft²
3 bedroom terraced house for sale in Blaen Blodau Street, NEWBRIDGE, NP114GF, NP11 — £140,000 • 3 bed • 1 bath • 661 ft²
3 bedroom terraced house for sale in Church Road, NEWBRIDGE, NP11 — £169,000 • 3 bed • 1 bath • 854 ft²
3 bedroom terraced house for sale in Main Street, NEWBRIDGE, Caerphilly, NP11 — £144,950 • 3 bed • 1 bath






































































