**Standout Features:**
- Modern detached home, newly built in 2023
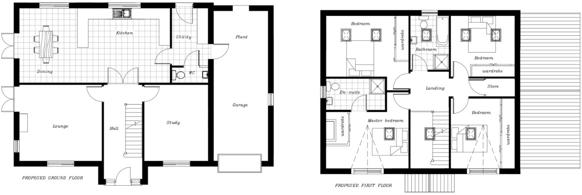
- Spacious layout with approximately 2,103 sq ft and 4/5 bedrooms
- Contemporary design with large open-plan kitchen and living area
- Air source heat pump for energy efficiency
- Gardens and off-street parking for 5-6 cars, including a garage
- Quiet location close to amenities and good schools in Wigton
- Chain-free sale
**Summary:**
Discover this remarkable modern detached home, recently constructed in 2023 and nestled near the vibrant market town of Wigton. This spacious family residence boasts 4/5 bedrooms and encompasses approximately 2,103 sq ft, making it perfect for both growing families and those seeking extra space. The open-plan kitchen and living area offers a bright and airy atmosphere thanks to ample natural light, while double doors lead out to a fully enclosed garden—ideal for children or entertaining. 
The home is energy-efficient, featuring an air source heat pump and double glazing, ensuring comfort year-round. The layout includes a versatile second reception room that can serve as a fifth bedroom or additional sitting area, catering to diverse family needs. Each of the four double bedrooms on the first floor is generously sized, with the master offering stunning views of the Lakeland fells and an en-suite shower room. 
Although the area has been noted for socio-economic challenges, it’s balanced by low crime rates and solid connections to amenities, including reputable schools with 'Good' Ofsted ratings. This property combines modernity and practicality in a family-friendly environment, all while being chain-free, presenting an exciting opportunity that won't last long. Don't miss your chance to call this unique home yours!
 4 bedroom detached house for sale in Milestone Close, Waverton, Wigton, CA7 — £595,000 • 4 bed • 2 bath • 2000 ft²
 4 bedroom detached house for sale in Milestone Close, Waverton, Wigton, CA7 — £595,000 • 4 bed • 2 bath • 2000 ft² 4 bedroom detached house for sale in Plot 96, The Peacock, Woolner Brook, Wigton, CA7 — £250,000 • 4 bed • 2 bath • 1141 ft²
 4 bedroom detached house for sale in Plot 96, The Peacock, Woolner Brook, Wigton, CA7 — £250,000 • 4 bed • 2 bath • 1141 ft² 4 bedroom detached house for sale in Woolner Brook, Wigton, CA7 — £255,000 • 4 bed • 3 bath • 1089 ft²
 4 bedroom detached house for sale in Woolner Brook, Wigton, CA7 — £255,000 • 4 bed • 3 bath • 1089 ft² 3 bedroom detached house for sale in St Cuthbert Close, Wigton, CA7 — £269,000 • 3 bed • 2 bath • 958 ft²
 3 bedroom detached house for sale in St Cuthbert Close, Wigton, CA7 — £269,000 • 3 bed • 2 bath • 958 ft² 3 bedroom detached house for sale in Primrose Bank, Wigton, Cumbria, CA7 9JW, CA7 — £220,000 • 3 bed • 1 bath • 882 ft²
 3 bedroom detached house for sale in Primrose Bank, Wigton, Cumbria, CA7 9JW, CA7 — £220,000 • 3 bed • 1 bath • 882 ft² 4 bedroom semi-detached house for sale in Deer Park, Wigton, CA7 — £239,950 • 4 bed • 2 bath • 1348 ft²
 4 bedroom semi-detached house for sale in Deer Park, Wigton, CA7 — £239,950 • 4 bed • 2 bath • 1348 ft²














































































































