Top-floor one-bed with modern finish and strong transport links.
Large private roof terrace with wide South West London views
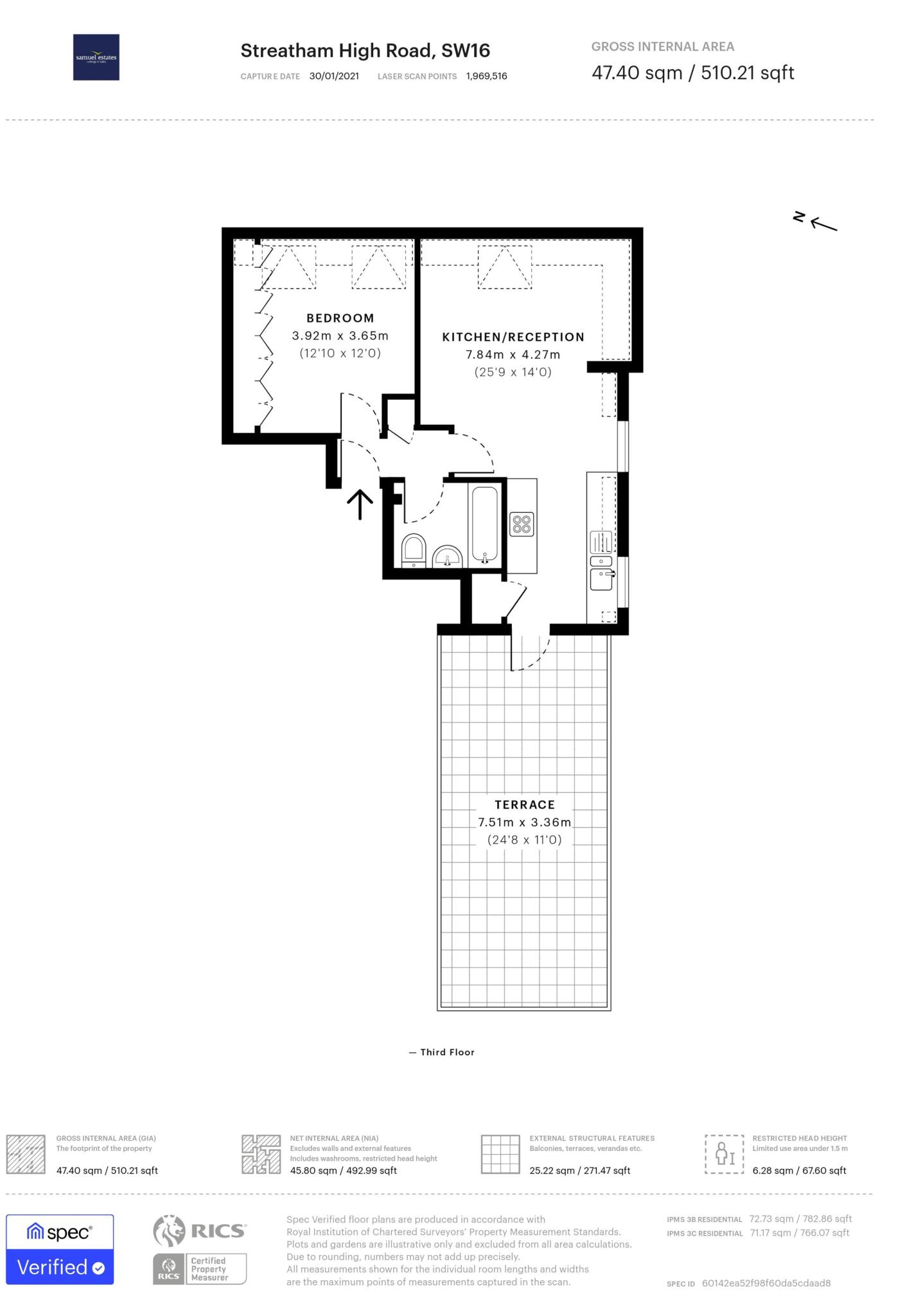
Set on the top floor of a purpose-built block in Streatham, this bright one-bedroom apartment offers an airy open-plan reception and a large private roof terrace with wide south-west London views. The layout uses its 500 sq ft efficiently, with a modern fitted kitchen, contemporary bathroom and built-in bedroom wardrobes — comfortable for a first-time buyer or a buy-to-let investor.
Practical running costs are straightforward: gas central heating, double glazing and an EPC rating of C. The flat is chain-free with a long lease (circa 104 years remaining), fast broadband and excellent mobile signal — useful for commuters and home-workers. Norbury station and multiple bus routes are within easy walking distance for direct services to Victoria, London Bridge, Gatwick and Brighton.
Notable costs and constraints are clear: the property is leasehold with a service charge averaging £1,376 pa, and Lambeth council tax band C applies. The location sits in a generally deprived area with average local crime figures, and the site has a medium flooding risk — factors to weigh for long-term owners or landlords.
Overall this is a contemporary, well-lit top-floor flat with a rare private roof terrace and good connectivity; it will suit buyers seeking an affordable entry into South West London or investors wanting a lettable, low-maintenance unit. Viewings will best show the space, light and terrace potential.
1 bedroom apartment for sale in Green Lane, Norbury, SW16 — £300,000 • 1 bed • 1 bath • 531 ft²
1 bedroom apartment for sale in Knollys Road, London, SW16 — £350,000 • 1 bed • 1 bath • 423 ft²
1 bedroom apartment for sale in Eardley Road, London, SW16 — £400,000 • 1 bed • 1 bath • 652 ft²
2 bedroom flat for sale in Gleneagle Road, London, SW16 — £450,000 • 2 bed • 1 bath • 840 ft²
2 bedroom flat for sale in Streatham High Road, Streatham, SW16 — £399,999 • 2 bed • 2 bath • 860 ft²
1 bedroom flat for sale in Stockwell Road, SW9 — £450,000 • 1 bed • 1 bath • 560 ft²














































