Ready-to-reopen small hotel near Sandown seafront and town amenities.
Freehold Victorian guest house with strong curb appeal
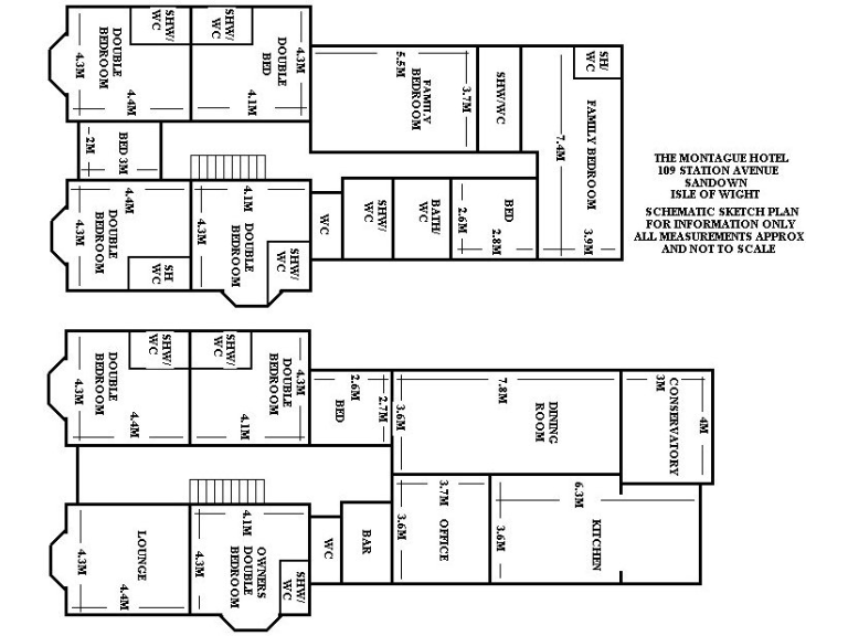
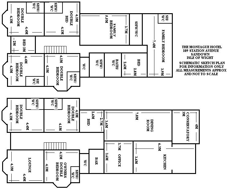
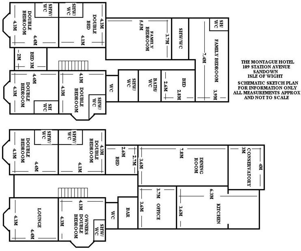
A rare freehold guest house in Sandown, refurbished internally to a high standard and offered with flexible use potential. The property currently provides ten letting rooms (five doubles, two family rooms, one larger single and two standards), most en-suite, plus owner’s accommodation with separate lounge and bedroom. Public spaces include a bright dining room leading to a conservatory and a well-kept garden, with garage and large workshop with power.
The building is Victorian in character with bay windows and high ceilings, offering strong curb appeal and immediate lettings potential for holiday guests or longer-term occupiers. The fitted kitchen is arranged for both domestic and commercial use, making it suitable for an experienced operator to re-open trading quickly. Some rooms are already let on longer-term agreements while the business is currently not actively trading due to semi-retirement.
Important practical points are stated plainly: the property sits in an area with high recorded crime and higher deprivation metrics, which may affect insurance, staffing and some guest markets. Offers are invited around £625,000 and prospective purchasers should check business rates liability and local planning constraints if considering conversion to alternative uses. Viewing is by appointment only.
This opportunity will appeal to investors or owner-operators seeking an already-refurbished, seaside guest house with garden, parking and workshop — or to those ready to explore change of use subject to consent. The established layout, plot and parking provide clear scope for continued hospitality operation or repurposing with planning.
Guest house for sale in Queens Road, Shanklin, PO37 — £575,000 • 1 bed • 1 bath • 4210 ft²
Guest house for sale in The Edgecliffe, 7 Clarence Gardens, PO37 — £500,000 • 1 bed • 1 bath • 3215 ft²
Guest house for sale in Grange Bank, PO37 — £550,000 • 1 bed • 1 bath
10 bedroom guest house for sale in Highfield Road, Shanklin, Isle of Wight, PO37 — £595,000 • 10 bed • 11 bath • 2076 ft²
11 bedroom character property for sale in Queens Road, Shanklin, Isle of Wight, PO37 — £650,000 • 11 bed • 9 bath • 3060 ft²
Hotel for sale in Hill Street, Sandown, PO36 — £685,000 • 1 bed • 1 bath






















