**Standout Features:**
- Historic Grade II* Listed Georgian building, built circa 1680
- Recently refurbished interior blending modern standards with original character
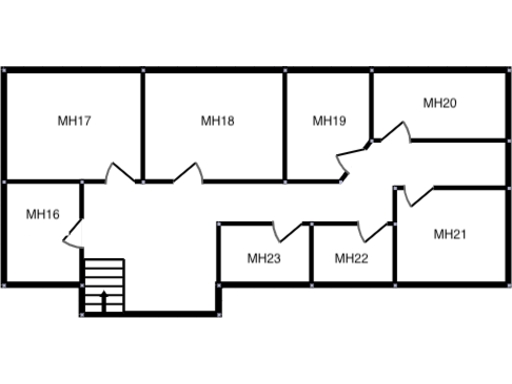
- Large premises with 5,261 sq ft of cellular office space
- Secure car parking with barrier access
- Prime town centre location; close to transport links and local amenities
- Part income-producing
**Potential Concerns:**
- Listed status may complicate renovations or alterations
- Above-average crime rate in the area
This impressive Georgian property, once a grand residence, now stands as a multifunctional office space in the heart of Sutton Coldfield, combining history and modernity. Spanning over 5,261 square feet, it boasts high ceilings and large sash windows that fill the space with natural light, lending a professional atmosphere ideal for serviced offices or consulting firms. The tasteful refurbishment preserves the charm of its original architectural details, including a stunning fireplace and feature staircase, making this a unique investment opportunity or workspace that stands apart from the ordinary.
With secure parking and a prime location adjacent to local amenities and educational institutions, The Moat House is not just a property but a potential hub for business. The prestigious listing status signals a significant value proposition for discerning buyers who appreciate heritage and are looking to invest in a growing area known for its affluent community and skilled workforce. However, it’s essential to consider the implications of its listed status on future usage or modifications. This remarkable property won't last long, so seize the chance to own a piece of history while shaping it for the future!
Mixed use property for sale in 5/5A Coleshill Street, Sutton Coldfield, B72 — £535,000 • 1 bed • 1 bath • 1556 ft²
High street retail property for sale in 22 High Street, Sutton Coldfield, West Midlands, B72 1UX, B72 — £225,000 • 1 bed • 1 bath • 1112 ft²
3 bedroom apartment for sale in Royal Sutton Place, King Edwards Square, Sutton Coldfield, B73 — £525,000 • 3 bed • 3 bath • 1872 ft²
5 bedroom detached house for sale in Birmingham Road, Sutton Coldfield, B72 — £775,000 • 5 bed • 2 bath • 2227 ft²
6 bedroom semi-detached house for sale in Chester Road, Castle Bromwich, Birmingham, B36 — £750,000 • 6 bed • 2 bath • 3391 ft²
4 bedroom semi-detached house for sale in Driffold, Sutton Coldfield, B73 — £625,000 • 4 bed • 3 bath • 1769 ft²






































































































