WA15 0LY - 6 bedroom detached house for sale in Arthog Road, Hale, WA15

View on Property Piper

6 bedroom detached house for sale in Arthog Road, Hale, WA15

Summary - 30 ARTHOG ROAD HALE ALTRINCHAM WA15 0LY

6 bed 3 bath Detached

**Standout Features:**
- Newly renovated, contemporary design
- Six spacious bedrooms, including a luxurious principal suite
- Three formal reception rooms and a sunlit garden room
- Fully equipped second kitchen ideal for entertaining
- Electric gated entrance with ample off-road parking
- Landscaped private rear garden

**Notable Considerations:**
- Property is chain free
- Located in a very affluent area with high council tax rates

---

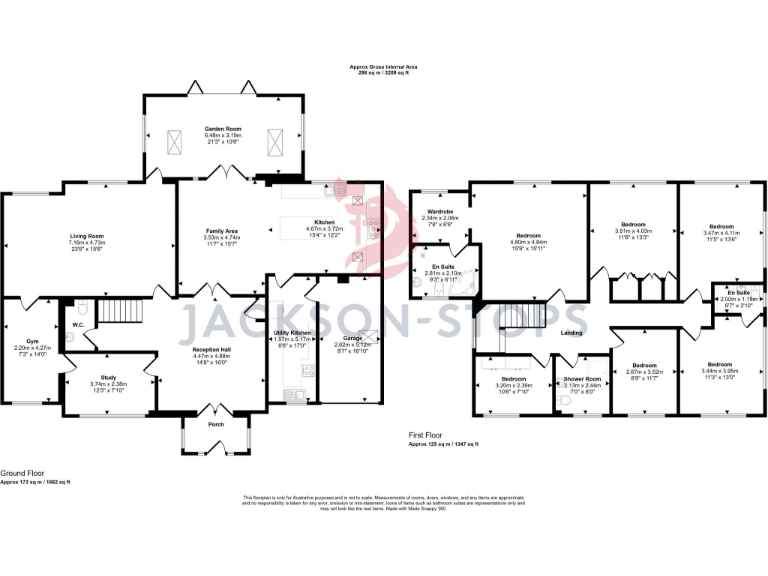
Step into this elegant six-bedroom detached home nestled in one of Hale's most desirable neighborhoods. Recently renovated, this modern residence boasts over 3,200 square feet of thoughtfully designed living space spread across two floors. The welcoming entrance unfolds into three formal reception rooms—perfect for entertaining guests or enjoying family gatherings—alongside a breathtaking open-plan kitchen with bespoke cabinetry and ambient lighting.

The property features a sunroom with vaulted ceilings that beautifully integrates indoor and outdoor living, as well as a fully equipped second kitchen ideal for large families or gatherings. Upstairs, indulge in a luxurious principal suite complete with a spa-style en suite and dressing area. Five additional well-sized bedrooms and high-quality finishes, including underfloor heating and premium flooring, ensure comfort and sophistication throughout.

Enjoy the security of a gated electric entrance with ample parking space, plus a beautifully landscaped garden perfect for recreation and entertaining. Located within easy reach of Hale village and surrounded by top-tier schools—including several prestigious independent options—this home is ideal for families seeking both luxury and functionality. With low crime rates and close-knit affluent communities, this property represents an excellent investment in comfort and lifestyle. Seize the opportunity to make this exceptional home your own—properties like this are rare and won’t last long!

Property Details

Image Descriptions

Floorplan Description

Rooms

Textual Property Features

Detected Visual Features

EPC Details

Nearby Schools

Nearest Bars And Restaurants

,,,,}

Nearest General Shops

,,}

Nearest Grocery shops

,,}

Nearest Supermarkets

,,}

Nearest Religious buildings

,,}

Nearest Medical buildings

,,,}

Nearest Airports

}

Nearest Leisure Facilities

,,,,}

Nearest Tourist attractions

,,}

Nearest Train stations

,,,,}

Nearest Bus stations and stops

,,,,}

Nearest Hotels

,,}

Tags

Local Market Stats

AirBnB Data

Similar Properties

Meta

High Res Images

Compatible Images

Low res Images

Thumbnails

Raw Images

High Res Floorplan Images

Compatible Floorplan Images

Low res Floorplan Images

FloorplanImages Thumbnail

Raw Floorplan Images