Chain-free three-bedroom mid-terrace with separate living and dining rooms
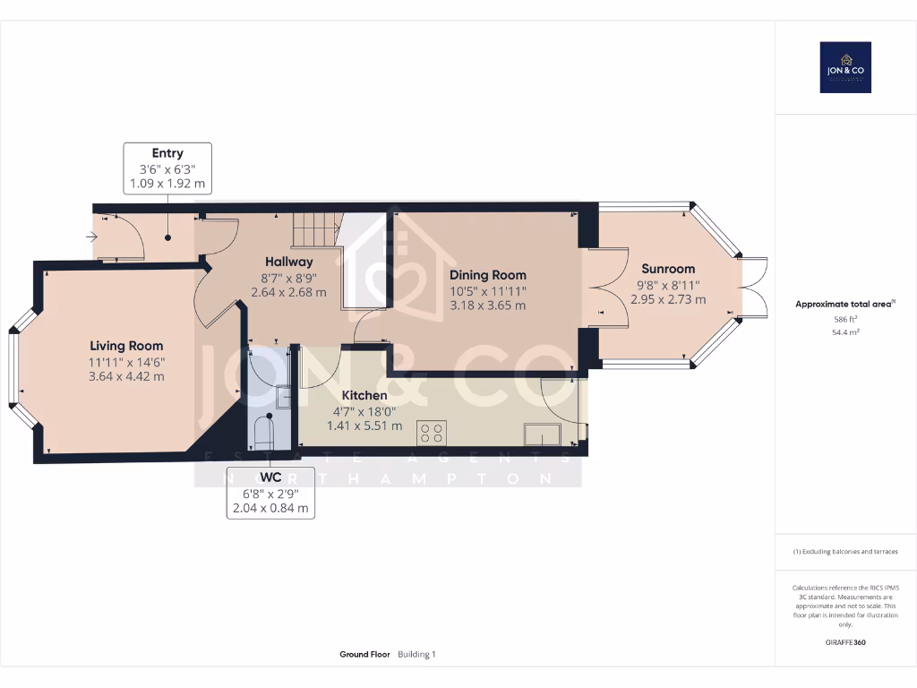
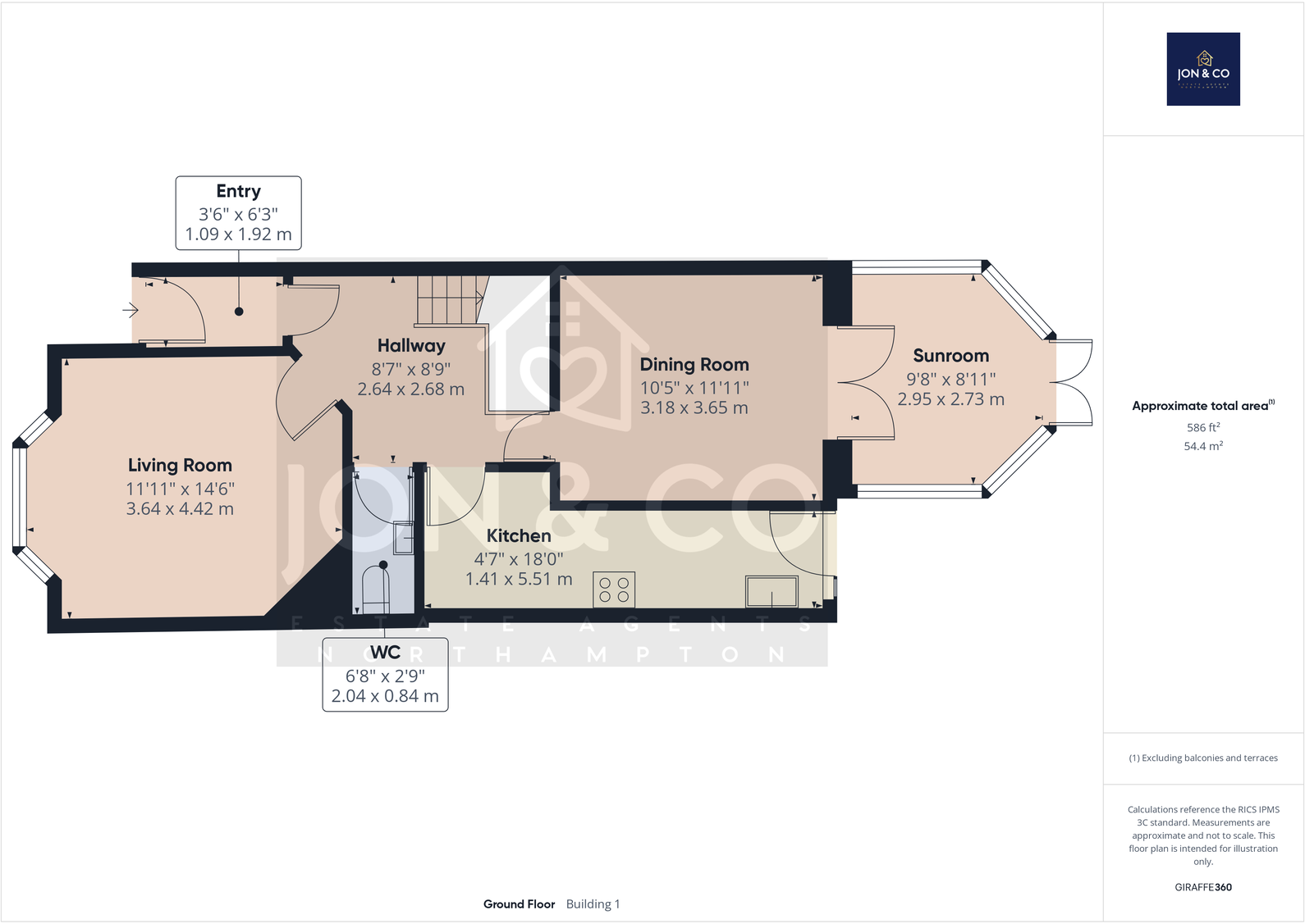
A spacious three-bedroom mid-terrace in Kingsthorpe offered chain-free, suited to families, first-time buyers or investors. The house benefits from separate living and dining rooms, a conservatory, cellar storage and a long garage accessed via a service road — useful for parking or workshop space.
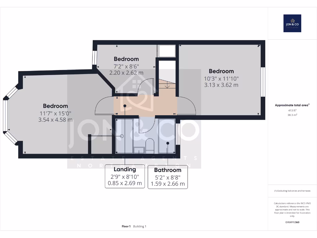
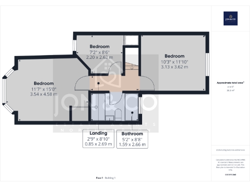
Rooms are generous, particularly the large main bedroom and formal reception spaces, and there’s a private rear garden for children or pets. The property has gas central heating and double glazing, and the EPC sits at a C rating.
Buyers should note some practical drawbacks: the property sits in a higher-crime and more deprived area, the plot is small, and the solid brick walls likely lack cavity insulation. The third bedroom is compact and the long, narrow kitchen may limit layout options. Double glazing was installed before 2002.
Overall this is a roomy, characterful terrace with clear potential for cosmetic updating or targeted improvement works to increase energy efficiency and market value. Its no-chain status, garage and proximity to good local schools make it a practical, versatile purchase.
3 bedroom terraced house for sale in Cranbrook Road, Kingsthorpe, NN2 6JT, NN2 — £200,000 • 3 bed • 1 bath • 685 ft²
3 bedroom terraced house for sale in Edinburgh Road | Kingsthorpe | NN2 — £245,000 • 3 bed • 1 bath • 1001 ft²
3 bedroom terraced house for sale in Clarence Avenue, Northampton, NN2 — £325,000 • 3 bed • 1 bath • 1260 ft²
3 bedroom terraced house for sale in Queens Crescent, Kingsthorpe, NN2 7BQ, NN2 — £210,000 • 3 bed • 1 bath • 793 ft²
3 bedroom semi-detached house for sale in Boughton Green Road, Kingsthorpe, NN2 7SR, NN2 — £270,000 • 3 bed • 1 bath • 1096 ft²
3 bedroom terraced house for sale in Boughton Green Road, Kingsthorpe, NN2 7AA, NN2 — £230,000 • 3 bed • 1 bath • 1026 ft²


















































































