CM22 6AB - 4 bedroom semidetached house for sale in Mill Road, Henham,…

View on Property Piper

4 bedroom semi-detached house for sale in Mill Road, Henham, Bishop's Stortford, Essex, CM22

Summary - 34 MILL ROAD HENHAM BISHOP'S STORTFORD CM22 6AB

4 bed 2 bath Semi-Detached

**Standout Features:**
- Spacious four-bedroom family home
- Stunning countryside views, including Henham Church
- Generous kitchen/dining room + utility room
- Downstairs WC and versatile study area
- Impressive sunroom conservatory
- Principal bedroom with ensuite bathroom
- Contemporary family shower room
- Enclosed 50ft rear garden with summerhouse/studio and play area
- Off-street parking for up to three cars
- Council Tax Band E, EPC Rating D

**Potential Downsides:**
- Double glazing condition is unknown; potential insulation upgrade needed
- Crime rate in the area is above average

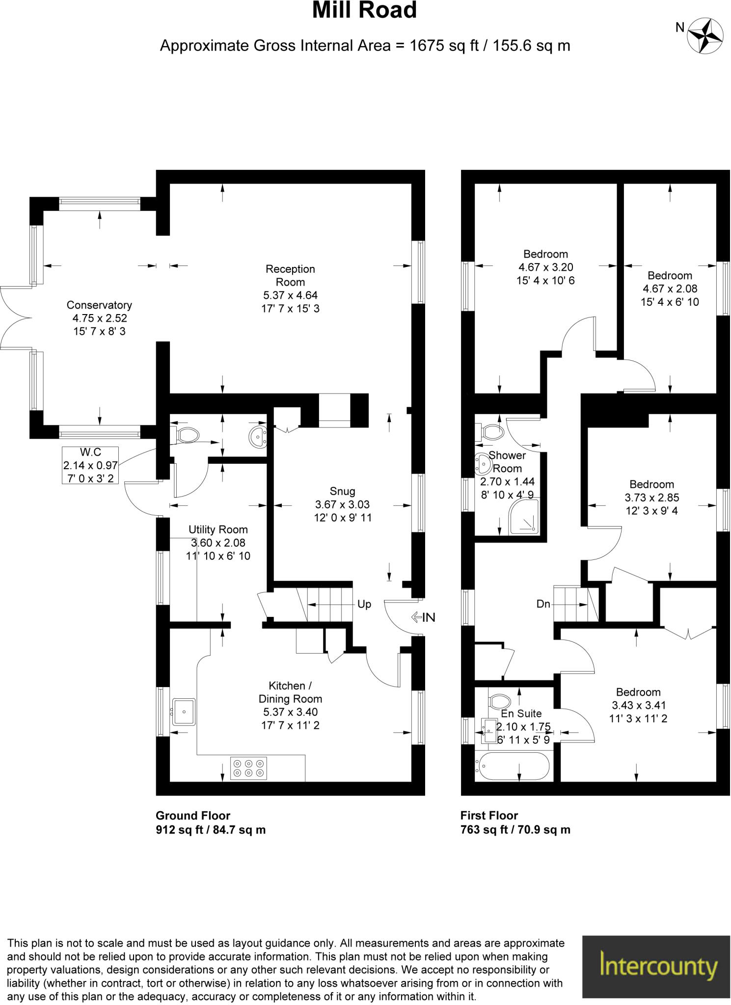
Nestled in the desirable village of Henham, this spacious four-bedroom semi-detached home offers an exceptional blend of comfort and charm. Boasting breathtaking views over open farmland and Henham Church, it features a welcoming kitchen/dining area perfect for family gatherings, complemented by a utility room and practical ground floor cloakroom. The inviting lounge leads to an expansive sunroom conservatory, ideal for relaxation or entertaining.

Upstairs, find four well-sized double bedrooms, with the principal suite hosting an ensuite bathroom alongside a contemporary family shower room, perfect for accommodating family and guests. The generously sized enclosed 50ft garden is a tranquil retreat, featuring a summerhouse for creative pursuits or leisure. With ample off-street parking and situated in a tranquil village atmosphere, this property presents a unique opportunity for family-oriented living among serene rural surroundings. Don't miss out on the chance to make it your own!

Property Details

Brochure Descriptions

Image Descriptions

Floorplan Description

Rooms

Textual Property Features

Detected Visual Features

EPC Details

Nearby Schools

Nearest Bars And Restaurants

,,,,}

Nearest General Shops

,,}

Nearest Grocery shops

,,}

Nearest Supermarkets

,,}

Nearest Religious buildings

,,}

Nearest Medical buildings

,,,}

Nearest Airports

}

Nearest Leisure Facilities

,,,,}

Nearest Tourist attractions

,,}

Nearest Train stations

,,,,}

Nearest Bus stations and stops

,,,,}

Nearest Hotels

,,}

Tags

Local Market Stats

Similar Properties

Meta

High Res Images

Compatible Images

Low res Images

Thumbnails

Raw Images

High Res Floorplan Images

Compatible Floorplan Images

Low res Floorplan Images

FloorplanImages Thumbnail

Raw Floorplan Images