LL65 2HP - 3 bed victorian terraced opportunity in Holyhead, LL65 2HP

View on Property Piper

3 bedroom terraced house for sale in Church Terrace, Holyhead, LL65

Summary - 4A CHURCH TERRACE, KINGSLAND ROAD, HOLYHEAD LL65 2HP

3 bed 1 bath Terraced

Large mixed-use space near port and station, ideal for investor or live-work buyer.
Ground-floor retail unit with shopfront and back office staff room
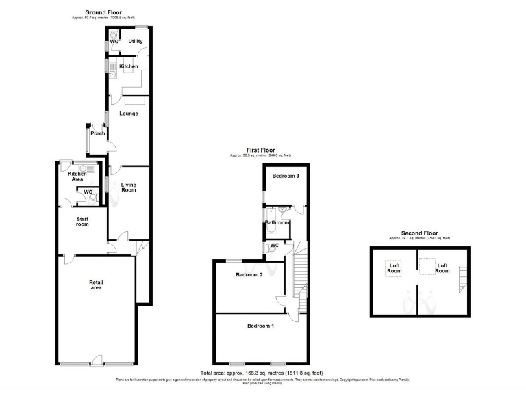
A substantial Victorian mid-terrace combining a ground-floor retail unit with large multi-storey living accommodation. The property offers flexible use: shopfront, office and staff room at street level, with lounge, dining room, kitchen, utility and cloakroom behind and above. Three first-floor bedrooms, bathroom plus separate WC, and two attic rooms provide unusually generous floorspace for a town-centre terrace.

Positioned close to Holyhead port, the mainline station and the A55, the location benefits from strong footfall and excellent transport links — useful for retail trade or rental demand. The building measures approximately 1,811 sq ft and is freehold, making it attractive to investors or buyers seeking a live-work setup.

The house is period-built (pre-1900) with granite/whinstone walls likely without insulation; double glazing is present though installation date is unknown. Heating is gas boiler with radiators and the EPC rating is D. The rear yard has lane access but the plot is small. A viewing is recommended to appreciate the size and layout.

Notable negatives: the property shows signs of requiring repair and modernization, particularly the retail frontage and internal finishes. The area is very deprived with above-average crime rates, which may affect tenant mix and resale; potential buyers should budget for refurbishment and possible insulation or upgrade works.

Property Details

Image Descriptions

Floorplan Description

Rooms

Textual Property Features

Target Audience

AI Tags

Detected Visual Features

EPC Details

Nearest Bars And Restaurants

,,,,}

Nearest General Shops

,,}

Nearest Grocery shops

,,}

Nearest Supermarkets

,,}

Nearest Religious buildings

,,}

Nearest Medical buildings

,,,}

Nearest Leisure Facilities

,,,,}

Nearest Tourist attractions

,,}

Nearest Train stations

,,,,}

Nearest Bus stations and stops

,,,,}

Nearest Hotels

,,}

Tags

Local Market Stats

AirBnB Data

Similar Properties

Meta

High Res Images

Compatible Images

Low res Images

Thumbnails

Raw Images

High Res Floorplan Images

Compatible Floorplan Images

Low res Floorplan Images

FloorplanImages Thumbnail

Raw Floorplan Images