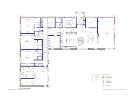
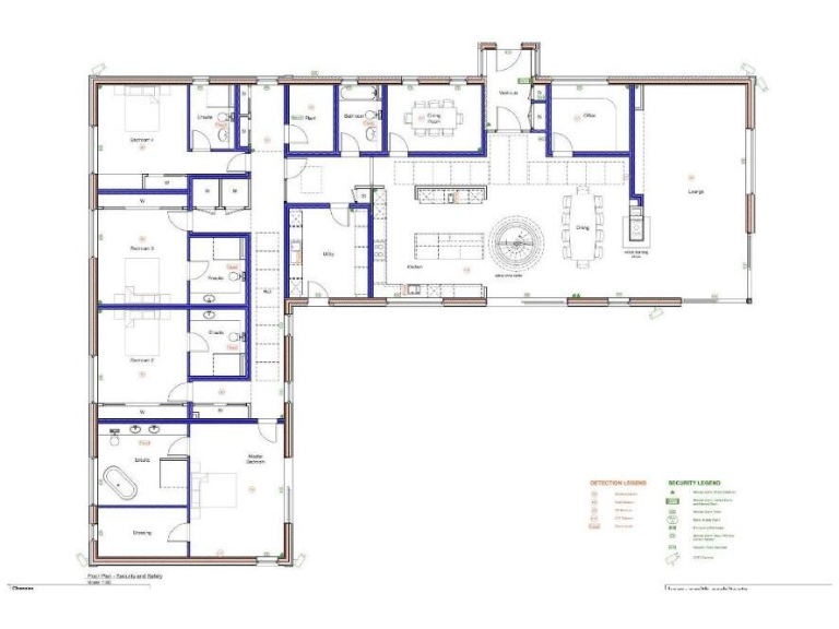
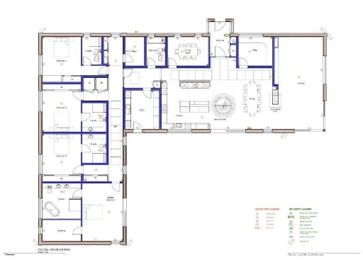
**Standout Features:**
- Substantial 3.3-acre plot in Fasque House Estate
- Full planning permission and building warrant for a luxury executive home
- Contemporary design potential with 4 bedrooms and 5 bathrooms
- Eco-friendly features: ground source heat pump, solar panels, and underfloor heating
- Unique amenities including a spiral wine cellar and home automation system
- Spacious land ideal for equestrian use or private landscaping
- Full utilities: electricity, mains water, and BT Telecoms fiber broadband
Nestled within the serene Aberdeenshire countryside, this expansive 3.3-acre land offers an exceptional opportunity to create a stunning contemporary home in the prestigious Fasque House Estate. With full planning permission and a building warrant approved for a luxurious 380m² dwelling, buyers can immediately begin construction or tailor designs to fit their preferences. The plot promises a host of eco-friendly elements, including a ground source heat pump and solar panels, ensuring both comfort and sustainability.
Set against a backdrop of nature, the land provides ample space for grazing paddocks or elaborate private gardens, delivering tranquility with easy access to major roads connecting Dundee and Aberdeen. While the area may have limited mobile signal and is classified as very deprived, it boasts fast broadband, perfect for modern living. Don't miss this rare chance to build your dream executive home in a peaceful, expansive setting—explore the possibilities today!
Plot for sale in Fasque House Estate, Fettercairn, Laurencekirk, AB30 — £240,000 • 1 bed • 1 bath
Plot for sale in Fasque House Estate, Fettercairn, Laurencekirk, AB30 — £136,000 • 1 bed • 1 bath
Land for sale in House Site & Land At Backfield Farm, Drumlithie, Stonehaven, Aberdeenshire, AB39 — £135,000 • 1 bed • 1 bath
Land for sale in Luthermuir, Laurencekirk, AB30 — £80,000 • 1 bed • 1 bath
Land for sale in Development Opportunity, Old School Site, Perry Road, Edzell Woods, Aberdeenshire, DD9 — £550,000 • 1 bed • 1 bath • 339 ft²
Land for sale in Woodside of Benholm, Johnshaven, Montrose, DD10 0HY, DD10 — £250,000 • 1 bed • 1 bath


















































