**Standout Features:**
- Extended semi-detached home with versatile accommodation
- Four bedrooms, two modern bathrooms, and a study that can be a fourth bedroom
- Contemporary, well-maintained living spaces
- Large, private south-facing garden—ideal for entertaining
- Off-street parking for up to four vehicles plus a detached garage
- No onward chain for a smooth buying process
- Close to shops, schools, and transport links
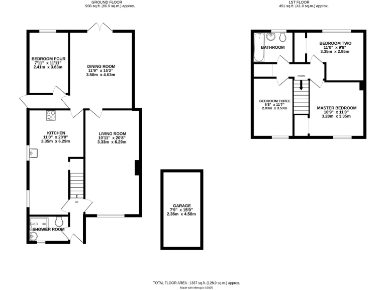
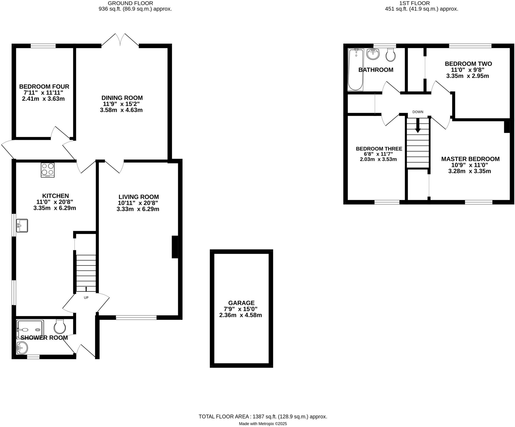
This beautifully presented extended semi-detached home offers an exceptional opportunity for families looking to upsize in a vibrant and accessible location. With a spacious layout featuring a modern open-plan living area, a stylish kitchen, and a study that can easily serve as an additional bedroom, this home is designed for flexibility and comfort. Upstairs, you'll find three well-sized bedrooms, including two with built-in wardrobes, along with a tastefully refitted family bathroom.
The generous south-facing rear garden provides a tranquil retreat and a fantastic space for summer gatherings. Conveniently situated near shops and excellent schools, including top-rated local options, you'll enjoy community living with easy access to transport links for a hassle-free commute to Reading and beyond.
Although the area has above-average crime rates, this home is ripe for family life with affordability and potential for further enhancements. Don't miss the chance to make this desirable property your family's new haven—properties with such versatile features are in demand, so act swiftly!































































