Architect-designed three-bedroom family home with high-spec finish and efficient heating..
High-spec, contemporary new-build completed 2025
Three double bedrooms; principal with ensuite and Juliet balcony
Two ground-floor bedrooms with direct garden access
Open-plan German kitchen with island and bifold doors
Air source heat pump — energy-efficient heating
Detached garage plus gated driveway parking
Wrap-around walled gardens; plot described as small
Local area: very deprived classification and above-average crime
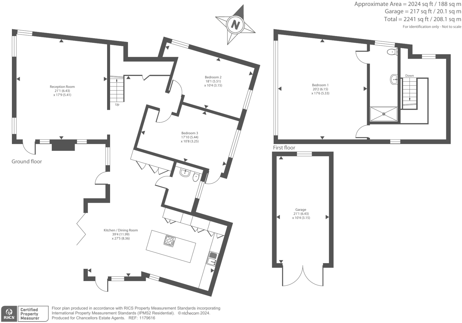
Designed by a noted architect and completed in 2025, this striking detached home offers contemporary living across an unusually large 2,241 sq ft footprint. The ground floor is arranged for flexible family life: two double bedrooms at ground level with direct garden access, a generous living room with a wood-burning stove, and a high-spec German kitchen opening via bifold doors to private patio seating.
Upstairs, the principal bedroom is a calm retreat with a Juliet balcony and a four-piece en-suite. Attention to build quality is evident throughout — Dekton worktops, integrated appliances, electric skylight and an efficient air source heat pump give the property a modern, low-energy edge. Practical extras include a detached garage and gated driveway parking.
The house sits tucked away in Ryelands Road, close to Leominster’s shops, schools and transport links (A49 access). Its secluded position and wrap-around walled gardens provide privacy and a series of outdoor seating areas, despite the overall plot being described as small.
Buyers should note a few material points: the wider local area scores as very deprived and recorded crime is above average — factors to consider for long-term value and personal security. The property is brand new and freehold, but listed appliances/services have not been independently tested and council tax banding is not yet confirmed.
3 bedroom detached house for sale in The Old Brickyard, Leominster, HR6 — £330,000 • 3 bed • 2 bath • 1019 ft²
4 bedroom detached house for sale in Aylestone Rise, Aylestone Hill, Hereford, Herefordshire, HR1 — £795,000 • 4 bed • 2 bath • 2800 ft²
4 bedroom detached house for sale in The Mallards, Leominster, HR6 — £379,000 • 4 bed • 3 bath • 1196 ft²
3 bedroom detached house for sale in Monkhide, Hereford, HR8 — £650,000 • 3 bed • 3 bath • 1540 ft²
4 bedroom detached house for sale in Church Road, Allensmore, HR2 — £645,000 • 4 bed • 3 bath • 1698 ft²
4 bedroom detached house for sale in Woodseaves Road, Eardisley, Hereford, HR3 — £750,000 • 4 bed • 3 bath • 1961 ft²


























































































