Extensive Grade II* country estate with mill, cottages and large grounds — renovation and consents required.
Grade II* listed main house and mill — strict conservation controls apply
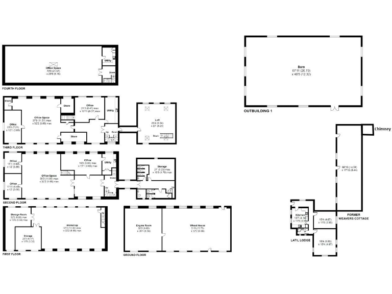
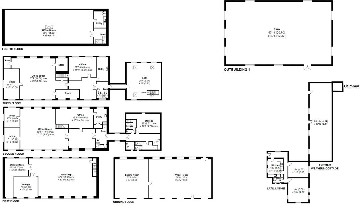
A rare Cotswold-valley estate combining a grand Grade II* Georgian country house, an extensive Grade II* mill, cottages and a separate one-bedroom lodge set within about 3.78 acres. The main house offers well-proportioned, high-ceilinged rooms and strong period character—sash windows, original fireplaces and large reception spaces—ideal for a family country seat or a sensitive conversion to multiple dwellings (subject to consent).
The mill and ancillary outbuildings provide substantial redevelopment potential: spacious floorplates across multiple levels, former industrial features and a stone barn/ workshop offer scope for residential conversion, commercial reuse or mixed-use development, subject to listed-building restrictions and planning approval. The adjoining cottages include recently renovated units that demonstrate what careful restoration can achieve.
Important practical points are clear: the estate is Grade II* listed, which will constrain alterations and require specialist conservation work; the main house and some buildings need significant renovation; broadband is slow and the site has a medium flood risk in parts. Council tax is above average and maintenance of such a large, historic estate will be substantial.
For buyers and investors who understand listed-building processes, this is a rare, large-scale opportunity in a very affluent, low-crime rural setting. The property may be offered as a sale of the freehold or potentially as a limited company, which may suit diverse ownership or commercial propositions.
6 bedroom detached house for sale in The Vatch, Stroud, Gloucestershire, GL6 — £1,900,000 • 6 bed • 4 bath • 4645 ft²
6 bedroom detached house for sale in Main Street, Coln St. Aldwyns, GL7 — £2,000,000 • 6 bed • 4 bath • 4135 ft²
5 bedroom detached house for sale in Woolaston Grange, Woolaston, Lydney, Gloucestershire. GL15 6PP, GL15 — £1,000,000 • 5 bed • 4 bath • 6444 ft²
6 bedroom detached house for sale in St. Briavels, Deceptively Spacious & Pleasant Views, GL15 — £600,000 • 6 bed • 2 bath • 2683 ft²
6 bedroom detached house for sale in Stokenhill, Whiteshill, GL6 — £1,600,000 • 6 bed • 5 bath • 4896 ft²
4 bedroom country house for sale in Rockstowes, Uley, Dursley, GL11 5AF, GL11 — £1,195,000 • 4 bed • 2 bath • 2912 ft²






































































































