Compact contemporary apartment close to Batley town amenities and transport.
Chain free sale with long lease (115 years) remaining
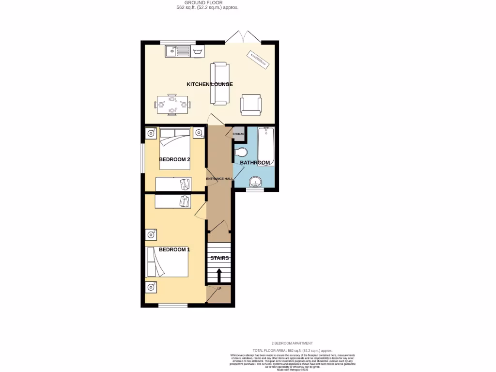
This compact two-bedroom apartment in Alder Mews offers a modern, low-maintenance home ideal for first-time buyers or investors. The open-plan living area and contemporary kitchen with integrated appliances create a bright, efficient living space across 562 sq ft.
Practical features include off-street parking, external CCTV and smart heating controls for energy efficiency and security. The property comes with a long lease (115 years remaining) and is offered chain free for a straightforward purchase. A shared garden provides a small outdoor space for residents.
Buyers should note the property is in a deprived area with above-average local crime rates; prospective purchasers may wish to check local safety measures and insurance costs. The apartment is small, so it suits those seeking a compact urban home rather than larger-family accommodation.
Located a short distance from Batley town centre, the flat benefits from easy access to shops, amenities and several well-rated schools nearby. The building was constructed post-2007 and has double glazing and gas central heating via boiler and radiators. An EPC rating of C indicates reasonable energy performance.
2 bedroom apartment for sale in Station Road, Batley, WF17 — £80,000 • 2 bed • 2 bath • 585 ft²
3 bedroom semi-detached house for sale in Heath Grove, Soothill, WF17 — £200,000 • 3 bed • 1 bath
2 bedroom apartment for sale in Bracken Green, East Ardsley, WF3 — £99,950 • 2 bed • 1 bath • 657 ft²
2 bedroom semi-detached house for sale in Providence Street, Batley, WF17 — £165,000 • 2 bed • 1 bath
2 bedroom terraced house for sale in Healey Lane, Batley, WF17 — £114,000 • 2 bed • 1 bath • 828 ft²
2 bedroom apartment for sale in Bracken Green, Wakefield, WF3 — £120,000 • 2 bed • 1 bath • 642 ft²


























































