Compact, well-located home offering value for first-time buyers or investors.
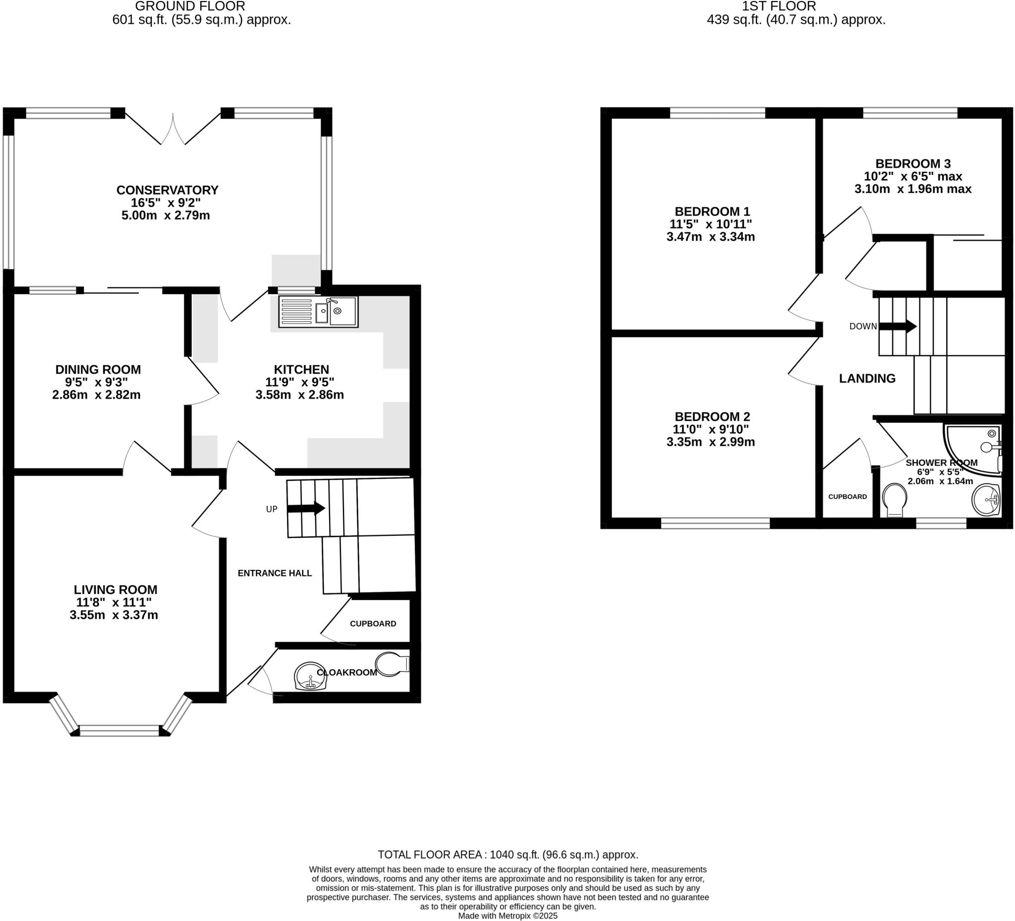
- Three bedrooms, family shower room, separate dining room
- Off-street driveway plus additional rear parking space
- Small front and rear gardens; compact town-plot
- Double glazing fitted pre-2002; boiler and radiators (mains gas)
- Built 1983–1990; mid-terrace, average internal size (≈1040 sq ft)
- Area records high crime and very high deprivation levels
- Tenure unknown; only one bathroom for three bedrooms
- Mobile signal excellent and broadband speeds fast
A practical three-bedroom mid-terrace in Lon Dolafon, Newtown, offering straightforward family living or a rental opportunity. The ground floor has a living room, separate dining room, kitchen, conservatory and cloakroom; upstairs are three bedrooms and a family shower room. Off-street driveway parking and a small front and rear garden add outside space in a compact footprint.
This house suits first-time buyers seeking affordability close to town amenities, or investors after a tenant-ready property with broadband and mobile signal already strong. Built in the 1980s with double glazing installed before 2002 and mains gas central heating, it is mostly functional but cosmetically dated in places (living room carpet and era fittings).
Be mindful of local context: the area records high crime and elevated deprivation indices, and the plot is small. Tenure is not specified. The property is not at flood risk and benefits from fast broadband and excellent mobile reception — practical positives for modern living or letting.
Overall this is a modest, well-laid-out home offering good value at the price point, attractive to those who prioritise location and affordability over a large plot or turnkey finishes. Some updating and cosmetic refresh would increase comfort and rental appeal.
2 bedroom terraced house for sale in Cledan, Newtown, Powys, SY16 — £118,000 • 2 bed • 1 bath • 850 ft²
3 bedroom end of terrace house for sale in Primrose Drive, Llanllwchaiarn, Newtown, Powys, SY16 — £169,950 • 3 bed • 1 bath • 806 ft²
3 bedroom semi-detached house for sale in Brimmon Close, Newtown, Powys, SY16 — £145,000 • 3 bed • 1 bath • 926 ft²
3 bedroom end of terrace house for sale in Colwyn, Newtown, Powys, SY16 — £145,000 • 3 bed • 1 bath • 893 ft²
3 bedroom end of terrace house for sale in Old Kerry Road, Newtown, SY16 — £160,000 • 3 bed • 1 bath • 679 ft²
3 bedroom terraced house for sale in Lon Glanyrafon, Vaynor, Newtown, Powys, SY16 — £169,950 • 3 bed • 1 bath • 947 ft²


























































































