Spacious three-bed with parking and easy rail commutes.
Victorian semi detached stone property with period features
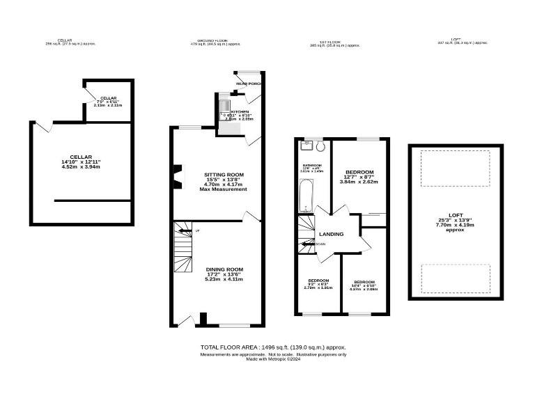
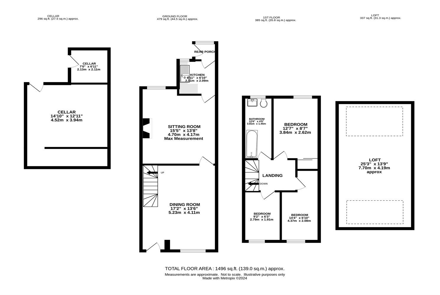
A bright, well-presented Victorian semi detached in the heart of Chinley, offering spacious rooms and period character throughout. Two reception rooms, three bedrooms and sizeable cellars give flexible living space for families or commuter households. The property benefits from double glazing and mains gas central heating for good year-round comfort.
Externally there is off-street parking to the front and an enclosed rear garden with flagged patio, dry stone walling and pleasant open aspects. The village centre location places shops, primary schools and the railway within easy reach – ideal for regular travel to Manchester or Sheffield.
Practical points to note: the house is leasehold (long lease remaining: 878 years) and is currently available on a short-term six-month lease. There is scope to create a loft room (subject to planning and building regulations) and two cellar chambers provide a utility area and boiler location. The stone walls are assumed uninsulated, so external or internal wall insulation could be required if energy efficiency improvements are desired.
Overall this is a roomy period home with strong commuter appeal and clear potential to add value through loft conversion and targeted updating. It will suit buyers seeking village living with good transport links and flexible accommodation, though those wanting a turnkey modern energy specification should factor potential upgrade works into their plans.
3 bedroom semi-detached house for sale in Green Lane, Chinley, SK23 — £369,995 • 3 bed • 3 bath • 646 ft²
3 bedroom terraced house for sale in Stubbins Lane, Chinley, SK23 — £255,000 • 3 bed • 1 bath • 560 ft²
3 bedroom semi-detached house for sale in Ash Grove, Chinley, SK23 — £294,000 • 3 bed • 1 bath • 753 ft²
4 bedroom house for sale in Station Road, Chinley, High Peak, SK23 — £280,000 • 4 bed • 2 bath • 1154 ft²
2 bedroom semi-detached house for sale in Lower Lane, Chinley, SK23 — £269,000 • 2 bed • 1 bath • 990 ft²
4 bedroom semi-detached house for sale in Green Lane, Chinley, SK23 — £580,000 • 4 bed • 2 bath • 797 ft²










































































