Well-located starter home with parking and loft ownership.
- Bay-fronted reception room, bright and spacious
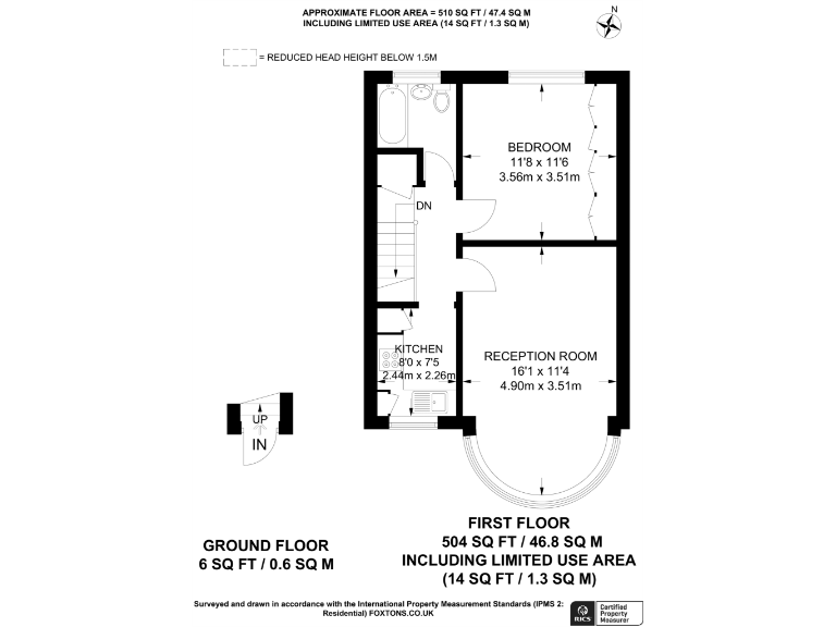
A bright first-floor one-bedroom flat in Hendon, arranged over approximately 510 sq ft with a bay-fronted reception and separate modern kitchen. The room layouts feel generous for the size, and the property includes an allocated off-street parking space and ownership of the loft — useful for storage or future conversion subject to planning.
This home will suit a first-time buyer seeking a period property with character from the 1930s and straightforward access to local amenities in Hendon, Mill Hill and Colindale. Transport links are convenient via the nearby A41 and local bus routes; several well-rated state schools are within reach, including an outstanding primary.
There are some practical drawbacks to note: the flat is leasehold, broadband speeds are reported as slow, and the building has solid brick walls with no known insulation. Exterior images indicate wear and a possible damp patch that may require investigation. Development potential exists (STPP) for buyers able to take on planning and renovation work.
Overall this is a well-lit, characterful one-bedroom in a convenient location, offering immediate liveability with clear scope for upgrading value through improvement or planning-led changes. Buyers should factor in leasehold terms, remedial works and broadband limitations when assessing value.
1 bedroom apartment for sale in 394 Watford Way, London, NW4 — £195,000 • 1 bed • 1 bath • 514 ft²
1 bedroom flat for sale in Moorhen Drive, Hendon, London, NW9 — £330,000 • 1 bed • 1 bath • 630 ft²
1 bedroom maisonette for sale in Dallas Road, London, NW4 — £315,000 • 1 bed • 1 bath • 499 ft²
2 bedroom flat for sale in Great North Way, Hendon, London, NW4 — £350,000 • 2 bed • 2 bath • 762 ft²
1 bedroom ground floor flat for sale in Sunningfields Road, Hendon, London, NW4 — £300,000 • 1 bed • 1 bath • 474 ft²
2 bedroom flat for sale in Mount Road, London, NW4 — £465,000 • 2 bed • 1 bath • 693 ft²






















































































