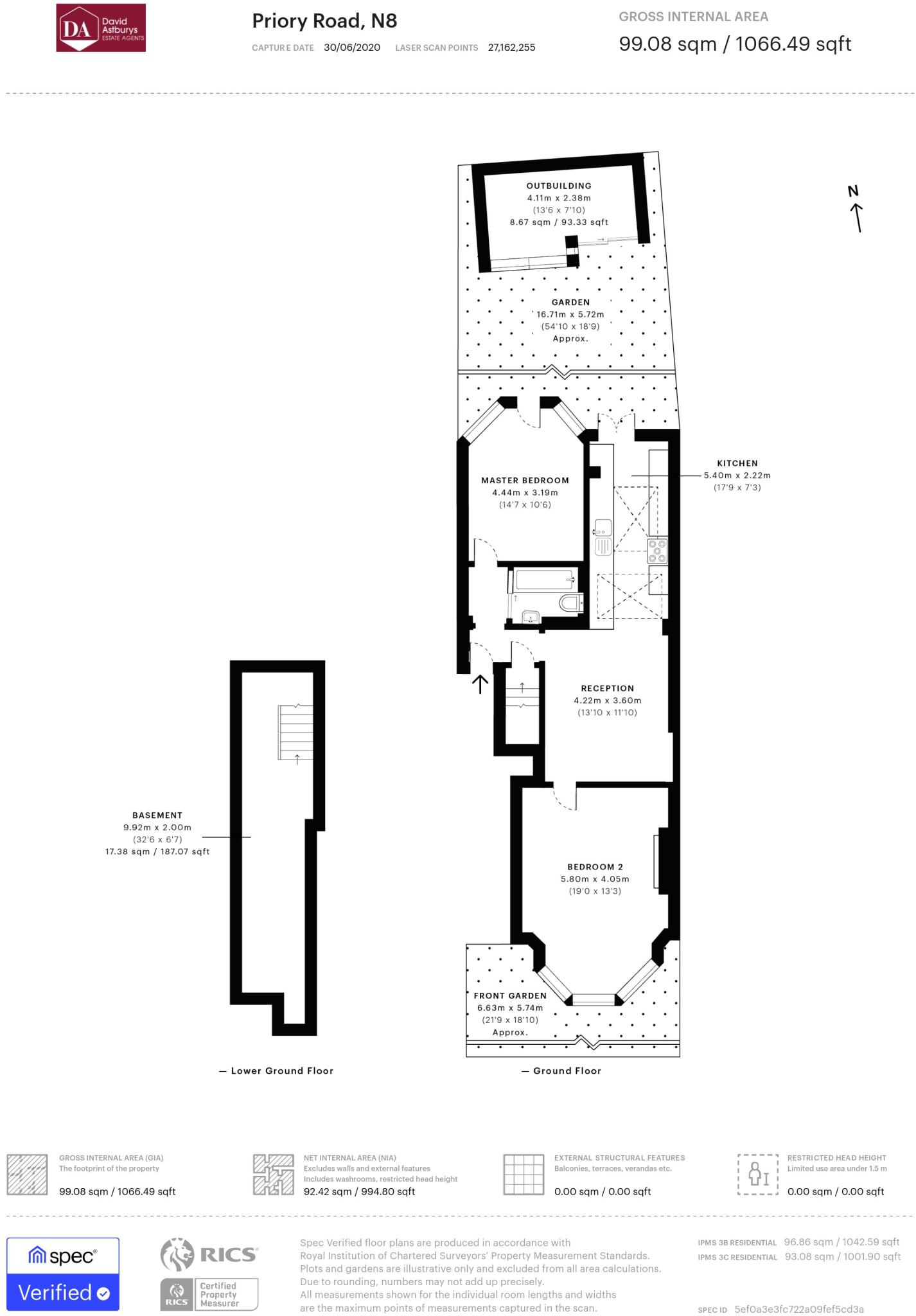
1,066 sq ft two-bedroom period conversion with landscaped private garden
A generous two-bedroom period conversion offering 1,066 sq ft of well-presented living space and a private landscaped garden. Recently and tastefully modernised, the flat combines contemporary finishes — a bright open-plan reception and marble-accented galley kitchen with skylights — with original period proportions. An external home office provides useful, flexible workspace away from the main living area.
The property includes a large cellar currently used for storage and presenting development potential (subject to planning permission). Share of freehold with a long underlying lease (999 years from 2012) keeps future tenure straightforward. Practical details: mains gas boiler and radiators, double glazing, and fast broadband with excellent mobile signal.
Location is a strong asset: moments from Priory Park and within easy reach of Crouch End Broadway, Alexandra Palace (0.8 miles) and Hornsey stations (0.6 miles). Good local schools and low crime rates make this a sensible choice for young families who want space, outdoor access and convenient commuter links.
Notable considerations: there is a single bathroom for two bedrooms; the property’s solid brick construction likely lacks wall insulation (assumed) and may benefit from energy upgrades. The substantial cellar development would require consent. Council tax is above average (Band E).















































