**Standout Features:**
- Spacious 2-bedroom flat, 1768 sq ft.
- Contemporary design with modern kitchen and living area.
- Secure off-street parking space and a full-length private balcony.
- Prime location in the bustling Park Central area, close to amenities and transport links.
- Ideal for first-time buyers or investors.
**Notable Concerns:**
- Leasehold property with an average service charge of £2,200.
- Crime rate in the area is above average.
- Council tax details are currently unknown.
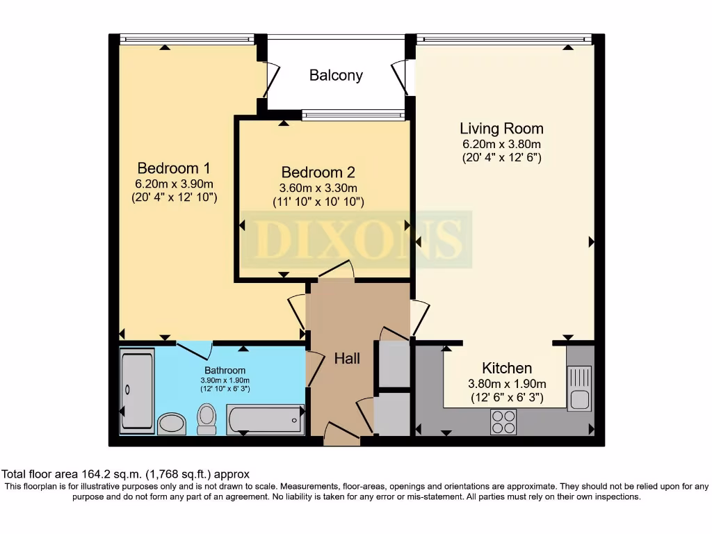
Discover city living at its finest with this impressive two-bedroom apartment located in the vibrant Park Central area of Birmingham. Spanning a generous 1768 square feet, this modern flat boasts an open-plan kitchen and lounge/diner, seamlessly blending sophistication and functionality. Enjoy ample natural light thanks to large windows, and take advantage of the stylish, well-equipped kitchen featuring sleek cabinetry and integrated appliances.
The property offers a secure allocated parking space and a full-length private balcony, perfect for unwinding after a busy day. Its prime location ensures easy access to Birmingham University, City Hospital, and a plethora of shops and restaurants. With excellent transport links, including New Street's Grand Central train station and The Bullring within walking distance, convenience is at your doorstep.
While this apartment presents an attractive opportunity for first-time buyers or investors, be mindful of the above-average crime rate in the area and the associated service charges. Don’t miss the chance to make this urban oasis your home or next investment—schedule a viewing today to explore its full potential!
2 bedroom flat for sale in Mason Way, Birmingham, West Midlands, B15 — £280,000 • 2 bed • 2 bath • 852 ft²
2 bedroom apartment for sale in Langley Walk, Birmingham, B15 — £225,000 • 2 bed • 2 bath • 718 ft²
2 bedroom apartment for sale in Mason Way, Park Central , Birmingham City Centre, B15 — £225,000 • 2 bed • 2 bath • 674 ft²
2 bedroom flat for sale in 105 Bell Barn Road, Birmingham, B15 — £230,000 • 2 bed • 2 bath • 648 ft²
2 bedroom flat for sale in Longleat Avenue, Birmingham, West Midlands, B15 — £170,000 • 2 bed • 1 bath • 651 ft²
2 bedroom apartment for sale in Bell Barn Road, Birmingham, B15 — £225,000 • 2 bed • 2 bath • 617 ft²


















































