Large garden and garage with approved extension plans for added bedrooms.
Freehold chalet bungalow on a large private plot
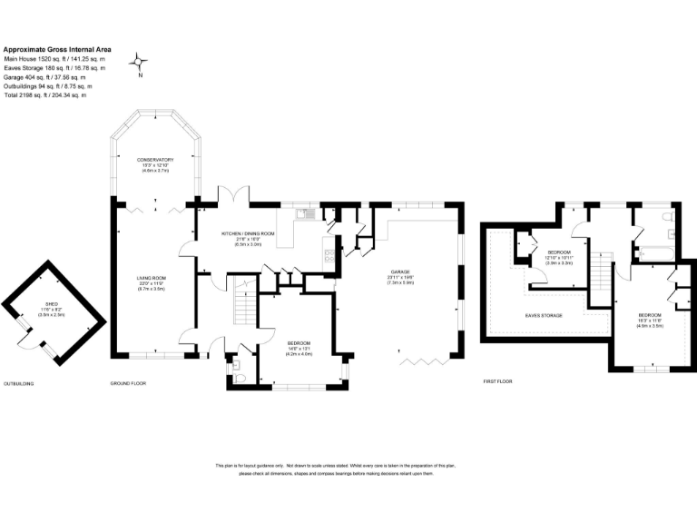
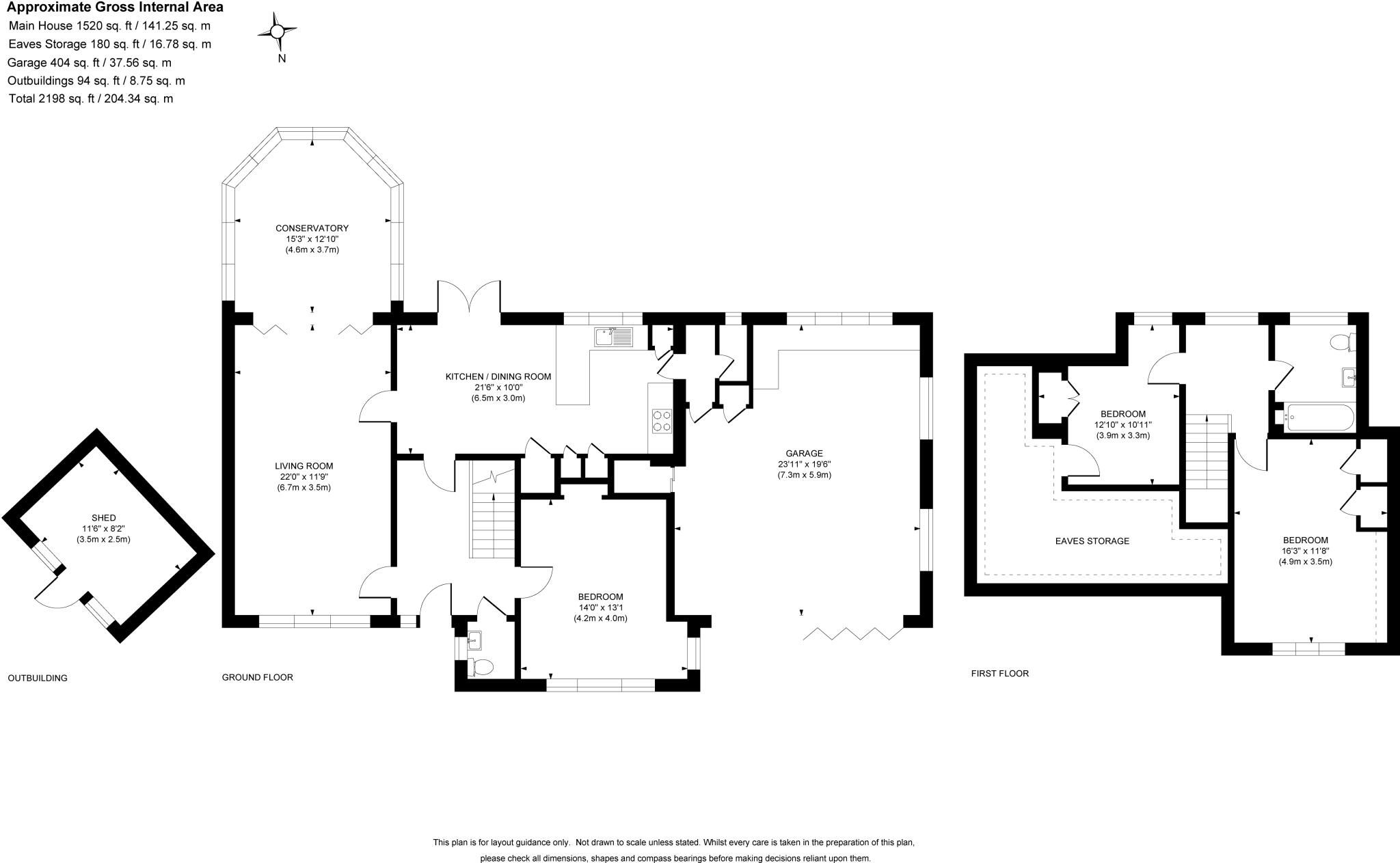
This spacious chalet-style bungalow sits on a large, private plot in Jacobs Well, offering generous living space and a well-landscaped rear garden. Well decorated throughout, the home has large reception rooms, a light conservatory and an open-plan kitchen/dining area that opens directly to the garden—ideal for family living and entertaining.
A major benefit is approved planning permission to convert the double garage into two bedrooms (one en-suite) plus a utility room, providing clear scope to increase bedroom count and value. The existing double garage, gated driveway and plentiful off-street parking add practical convenience for families and hobbyists.
Practical points to note: there is a single family bathroom on site and the property dates from the early 20th century. Cavity walls are listed as having no insulation (assumed) and glazing was installed before 2002, so buyers wanting maximum thermal efficiency may plan upgrades. Council tax is described as expensive.
Set in a very affluent, low-crime area with good fast broadband and reasonable mobile signal, the location offers village amenities, nearby schools (several rated highly) and straightforward road and rail links to Guildford, Woking and the A3/M25 network.
3 bedroom detached house for sale in Stringers Avenue, Jacob's Well, Guildford, Surrey, GU4 — £750,000 • 3 bed • 2 bath • 2219 ft²
4 bedroom detached house for sale in Holly Lea, Jacobs Well, Guildford, Surrey, GU4 — £675,000 • 4 bed • 2 bath • 1732 ft²
2 bedroom semi-detached bungalow for sale in Grangefields, Jacob's Well, GU4 — £425,000 • 2 bed • 1 bath • 780 ft²
3 bedroom semi-detached house for sale in Stringers Avenue, Jacob's Well, Guildford, Surrey, GU4 — £600,000 • 3 bed • 2 bath • 1151 ft²
3 bedroom semi-detached bungalow for sale in Queenhythe Road, Jacobs Well, GU4 — £499,000 • 3 bed • 1 bath • 844 ft²
4 bedroom semi-detached house for sale in Clay Lane, Jacob's Well, Guildford, Surrey, GU4 — £700,000 • 4 bed • 1 bath • 1306 ft²










































































