Practical, low-maintenance home ideal for first-time buyers or landlords.
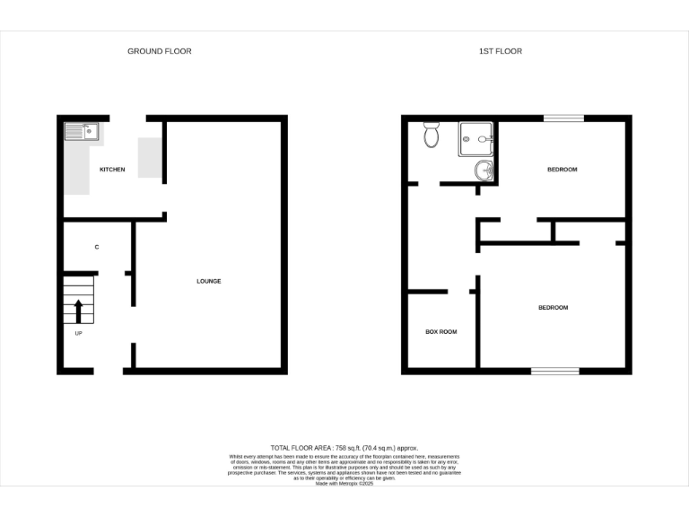
Three bedrooms with two doubles and a box room/study
Double-glazed windows and electric heating throughout
Low-maintenance front and enclosed rear gardens with patio
Integrated kitchen appliances; large walk-in storage cupboard/boiler
On-street parking only; no private driveway or garage
Modest overall footprint and small external plot size
Single shower room only; no separate bath
Located in a very deprived area — consider local market risks
This compact three-bedroom terraced home in Merkinch offers practical living close to Inverness city centre. Well-proportioned rooms, double glazing and electric heating create a comfortable base for a first home or a rental investment. The lounge’s wall-mounted electric fire and large windows give a welcoming, light-filled living space.
The kitchen is fitted with integrated oven, hob and extractor, plus space for fridge/freezer and washing machine. Upstairs there are two double bedrooms with fitted wardrobes and a third box room suitable as a study or single bedroom. A fully wet-walled shower room provides a modern, easy-to-clean bathing space.
Outside, low-maintenance front and rear gardens include locbloc paving, a patio area, two sheds and a rotary dryer. On-street parking serves both residents and visitors. The house is steps from local shops, services and schools, with straightforward access into Inverness for wider facilities and transport links.
Note: the property sits within a very deprived area, and the overall plot and internal footprint are modest. Heating is electric and there is a single shower room, which may matter to some buyers seeking more space or lower running costs.
2 bedroom end of terrace house for sale in 55B Innes Street, Inverness, IV1 — £146,000 • 2 bed • 1 bath • 518 ft²
3 bedroom semi-detached house for sale in 100 Kenneth Street, Inverness, IV3 — £190,000 • 3 bed • 2 bath
3 bedroom terraced house for sale in Evan Barron Road, Inverness, IV2 4JD, IV2 — £155,000 • 3 bed • 1 bath • 883 ft²
3 bedroom apartment for sale in 136 Laurel Avenue, Dalneigh, Inverness, IV3 — £129,000 • 3 bed • 1 bath • 331 ft²
3 bedroom terraced house for sale in 27 Beechwood Road, Inverness, IV2 — £150,000 • 3 bed • 1 bath
3 bedroom terraced house for sale in Walker Crescent, Inverness, IV2 7NB, IV2 — £145,000 • 3 bed • 2 bath • 1066 ft²






































































