Compact one-bed in central Reading with period character and parking — lease issue may affect lending..
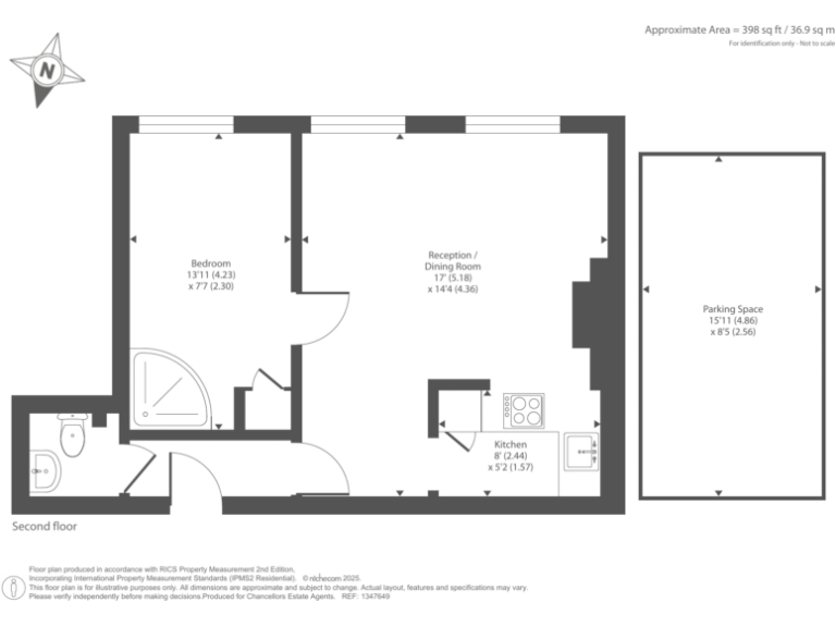
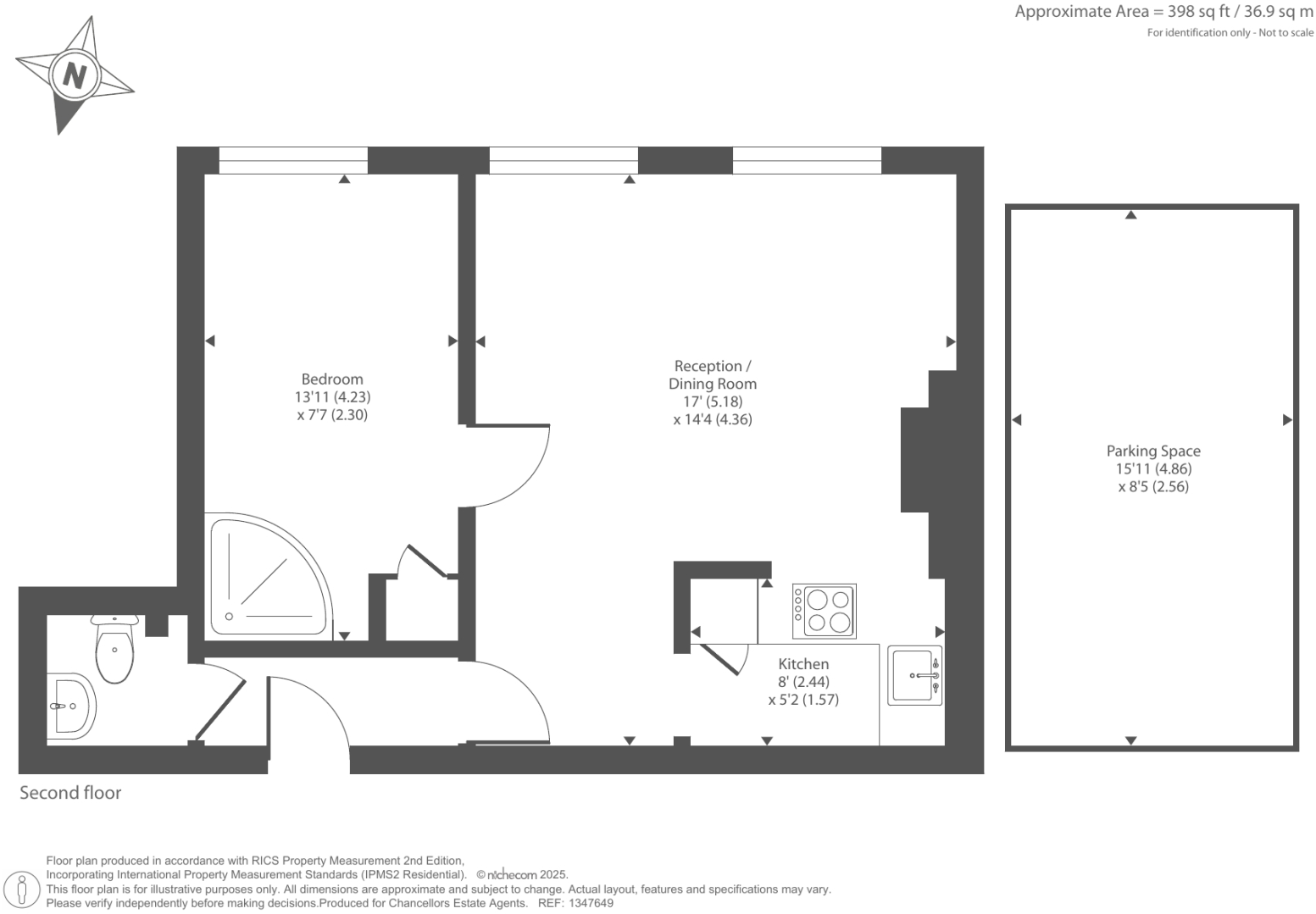
- Top-floor one-bedroom flat in a Georgian townhouse
- Approx 398 sq ft; compact living space
- Off-street parking and communal gardens
- Very short lease reported (c.33 years) — mortgage risk
- Electric room heaters; likely uninsulated stone walls
- Possible damp and period maintenance required
- Excellent walkable access to Reading centre and station
- Area has higher crime levels; inner-city deprived location
This one-bedroom top-floor flat sits in a handsome Georgian townhouse on Castle Hill, a short walk from Reading town centre and the station. The apartment offers character features, a recently refreshed living room with wood flooring and modern lighting, and the convenience of off-street parking and communal gardens.
The property is small (about 398 sq ft) and best suited to a single buyer, couple or investor seeking central location and rental potential. Heating is by electric room heaters and the building’s stone walls are likely uninsulated; consider energy and maintenance costs when budgeting. Council tax is very low, which helps running costs.
A material issue is the lease length: information indicates a very short remaining term (reported as c.33 years), which may prevent standard mortgage lending and will affect value. The building dates from before 1900 and shows period character but may need works to address possible damp and insulation. The wider area is an inner-city, deprived zone with higher crime statistics, so buyers should factor location risks into their plans.
For a buyer who values central access and period character, this flat offers an affordable entry to Reading or a compact lettable asset for investors — but obtain mortgage confirmation and a full survey before committing due to the lease and possible refurbishment needs.
1 bedroom flat for sale in Castle Hill, Reading, Reading, RG1 — £235,000 • 1 bed • 1 bath • 435 ft²
1 bedroom apartment for sale in Coley Hill, Reading, Berkshire, RG1 — £210,000 • 1 bed • 1 bath • 440 ft²
1 bedroom flat for sale in Reading, Berkshire, RG2 — £170,000 • 1 bed • 1 bath • 430 ft²
1 bedroom flat for sale in Castle Hill, Reading, RG1 — £165,000 • 1 bed • 1 bath • 362 ft²
2 bedroom apartment for sale in Coley Hill, Reading, Berkshire, RG1 — £235,000 • 2 bed • 1 bath • 490 ft²
1 bedroom flat for sale in Walkers Place, Reading, RG30 — £130,000 • 1 bed • 1 bath • 420 ft²


























































































