Large private gardens and versatile single‑storey living near countryside reserves.
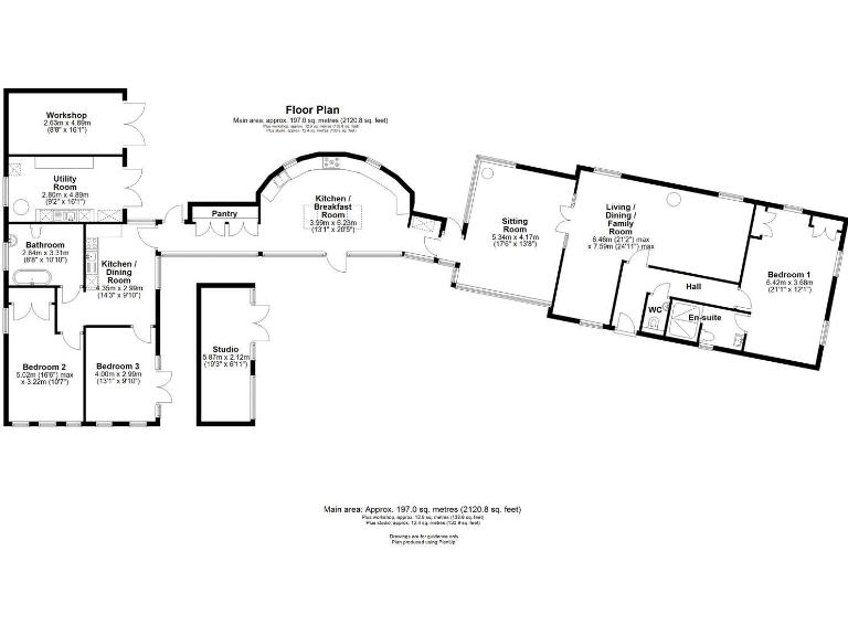
- Detached bungalow on approximately 0.80 acre mature gardens
- Very large internal size around 2,120 sq ft, versatile layout
- Refitted kitchen/breakfast room with island and vaulted roof lights
- Timber studio with power, heating and hardwired internet
- Oil‑fired boiler and radiators; no mains gas on site
- Electric gated private driveway and extensive off‑street parking
- Two wells on site; mains water and electricity also connected
- Park Lane management charge approx £240 p.a; high council tax
Set well back on a private lane, this unusually spacious detached bungalow sits in about 0.80 acres of mature, private gardens — ideal for families seeking single‑storey living with generous outdoor space. The heart of the home is a large, refitted kitchen/breakfast room with a curved layout, island and roof lights, opening onto living spaces configured for flexible family, annexe or multi‑generational use. Two sitting areas both feature wood burners and full‑height glazing, creating bright, adaptable reception space.
Practical outbuildings add real value: a powered, heated timber studio with hardwired internet and a large timber garage for parking or storage. A long private driveway with electric gates leads to extensive parking. The property benefits from oil‑fired central heating, a mix of double and some triple glazing, a sizeable utility with workshop adjoined, and two on‑site wells (mains water and electricity are connected).
Buyers should note the property is timber‑framed and was constructed in the early 1990s, and it has oil fuelled heating rather than gas. There is an annual Park Lane management charge of approximately £240 for road maintenance and the council tax band is high. Overall, this is a rare, low‑density village setting offering generous indoor and outdoor accommodation for families, downsizers wanting roomy single‑storey living, or buyers seeking annexe potential.
5 bedroom detached house for sale in View Farm Close, Dry Drayton, Cambridge, CB23 — £1,250,000 • 5 bed • 3 bath • 2498 ft²
5 bedroom detached bungalow for sale in Oakington Road, Girton, CB3 — £900,000 • 5 bed • 3 bath • 2735 ft²
6 bedroom barn conversion for sale in Chapel Road, Great Eversden, CB23 — £1,500,000 • 6 bed • 4 bath • 4250 ft²
4 bedroom detached house for sale in High Street, West Wratting, Cambridge, CB21 — £1,000,000 • 4 bed • 3 bath • 2663 ft²
4 bedroom detached bungalow for sale in Cambridge Road, Hardwick, Cambridge, CB23 — £750,000 • 4 bed • 2 bath • 1860 ft²
2 bedroom barn conversion for sale in Bourn Rd, Kingston, CB23 — £649,500 • 2 bed • 4 bath • 1959 ft²














































































































































































