Affordable starter home or investment close to schools and local amenities.
Chain-free freehold Edwardian terrace with bay-window character
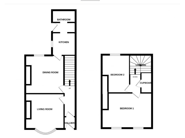
A compact two-bedroom Edwardian terrace offered chain-free and freehold, suited to first-time buyers or investors seeking an affordable entry into the Peterlee market. The property has good natural light and period bay-window character with a practical two-storey layout and a small, low-maintenance rear yard.
The house is semi-renovated in parts and will need finishing work to reach modern standards — ideal for someone wanting to add value through refurbishment. Combi central heating is installed and there is no flood risk. Broadband speeds are fast and mobile signal is excellent, supporting modern working-from-home needs.
Located in a small-town fringe area within walking distance of local shops, bus stops and several well-rated primary and secondary schools, the home offers convenience for families. The neighbourhood is economically deprived with above-average crime rates, which should be weighed against the low asking price and potential rental yield (circa £550pcm referenced).
Overall this is a budget-friendly, practical property for buyers comfortable completing cosmetic and finishing works. It presents clear investor potential or a starter-home opportunity for someone who wants a manageable renovation project with low running costs such as very cheap council tax.
3 bedroom terraced house for sale in Thomas Street, Easington, Peterlee, Durham, SR8 3LT, SR8 — £55,000 • 3 bed • 1 bath • 894 ft²
3 bedroom terraced house for sale in Stafford Place, Peterlee, SR8 — £74,950 • 3 bed • 1 bath
2 bedroom terraced house for sale in Ashton Street, Peterlee, SR8 — £35,000 • 2 bed • 2 bath • 743 ft²
2 bedroom terraced house for sale in Byron Street, Peterlee, Durham, SR8 — £65,000 • 2 bed • 1 bath • 1017 ft²
2 bedroom semi-detached house for sale in Oak Road, Easington, Peterlee, Durham, SR8 3HX, SR8 — £104,950 • 2 bed • 1 bath • 695 ft²
2 bedroom end of terrace house for sale in Tenth Street, Peterlee, SR8 — £48,000 • 2 bed • 1 bath • 959 ft²


























































