Quiet cul-de-sac location with private golf-course outlook and garage parking.
Three-bedroom semi-detached family home backing onto golf course
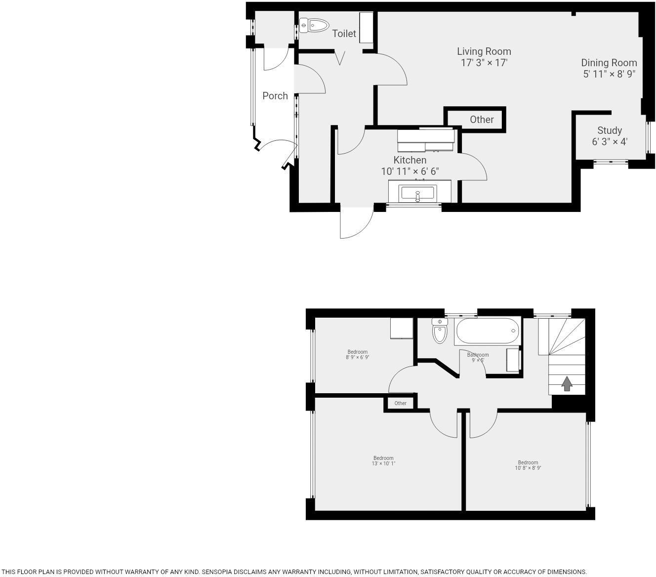
Set on popular Ashford Drive and sold with no onward chain, this three-bedroom semi offers a rare rear outlook directly over Pype Hayes Golf Course. The ground floor provides a full-depth living room with patio doors to the garden, a separate study, and a practical fitted kitchen — a layout that suits families or home-workers seeking immediate use with scope to personalise.
Upstairs are three well-proportioned bedrooms and a modern family bathroom. The property has double glazing and gas central heating; the plot includes a small rear garden, driveway parking and an attached garage. At about 716 sq ft, the house is compact but arranged for comfortable family living in a quiet cul-de-sac location.
Important sale terms and notable points: this sale uses a Secure Sale (BUY IT NOW option available) process and requires a non-refundable Reservation Fee of £7,475 including VAT on offer acceptance. The home is freehold, has no flood risk, and sits in an affluent neighbourhood with fast broadband and excellent mobile signal.
Potential buyers should note the smaller-than-average overall size and plot, and that the layout offers opportunity for updating or reconfiguration if a larger open-plan ground floor is preferred. Local schools nearby include an outstanding junior school and several good primaries and secondaries, making the location appealing to families.
3 bedroom semi-detached house for sale in 293 Eachelhurst Road, Sutton Coldfield, B76 1DS, B76 — £350,000 • 3 bed • 2 bath • 1074 ft²
3 bedroom semi-detached house for sale in Hornbrook Grove, Solihull, B92 — £310,000 • 3 bed • 1 bath • 928 ft²
3 bedroom detached house for sale in Wentworth Way, Birmingham, B32 — £440,000 • 3 bed • 2 bath • 1465 ft²
4 bedroom semi-detached house for sale in Blakesley Close, Sutton Coldfield, B76 — £400,000 • 4 bed • 2 bath • 1551 ft²
3 bedroom semi-detached house for sale in Hansons Bridge Road, Birmingham, B24 — £260,000 • 3 bed • 1 bath
4 bedroom detached house for sale in Kempson Avenue, Sutton Coldfield, B72 — £725,000 • 4 bed • 2 bath • 2161 ft²










































































