**Standout Features:**
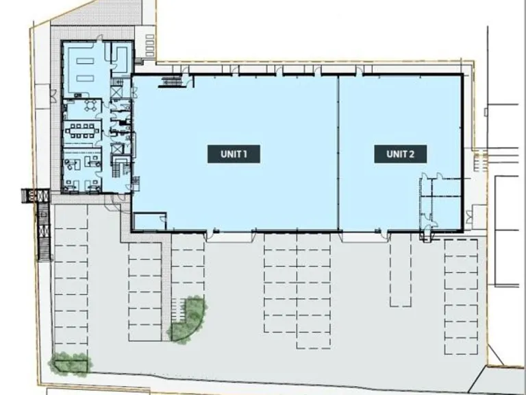
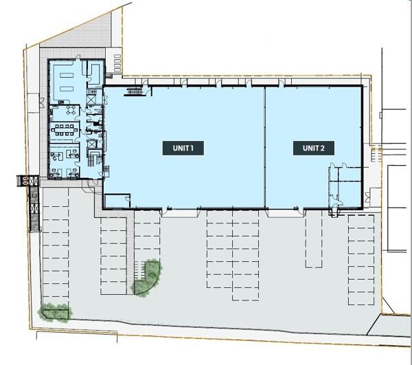
- **Size & Layout:** 19,742 sq ft of modern light industrial space on a 0.95-acre site.
- **Current Tenancy:** Two units leased to reputable companies providing stable income.
- **Gross Income:** £148,000 per annum with a net rental income of £138,900.
- **Lease Terms:** Long leasehold interest with over 126 years remaining; favorable lease terms with a mix of stability and future income potential.
- **Location:** Located on the primary industrial estate in Chichester, near key amenities and transport links.
- **Parking:** 39 off-street parking spaces; secure loading bays included for operational convenience.
**Potential Concerns:**
- **High Ground Rent:** Annual ground rent of £9,100 may affect net income.
- **High Local Crime Rate:** Consideration needed for security measures.
This light industrial facility, situated in the bustling and affluent city of Chichester, represents a lucrative investment opportunity with a solid income stream from two established tenants, BECKTECH LIMITED and PRO-ACTIVE BUSINESS INFORMATION LIMITED. Built in 2000, the property’s modern industrial design boasts high ceilings, secure parking, and efficient layout to cater to various operational needs, making it ideal for small to medium-sized enterprises or logistics companies looking to thrive in a well-connected area.
With an impressive net initial yield of 8.1%, this property not only promises reliability but also the potential for future enhancement, especially when considering the long lease tenure and favorable local market. While the high ground rent and elevated crime rate in the area do present some points for consideration, the benefits and return on investment make this property a valuable addition to any portfolio. Don’t miss the chance to secure a highly sought-after asset in Chichester’s dynamic industrial landscape!
Light industrial facility for sale in Units M2 & M3, Hilton Park Industrial Estate, Church Farm Lane, East Wittering, West Sussex, PO20 8RL, PO20 — £515,000 • 1 bed • 1 bath • 3676 ft²
Warehouse for sale in Unit K39 & K40, Glenmore Business Park, Chichester, PO19 7BJ, PO19 — £570,000 • 1 bed • 1 bath • 4048 ft²
Light industrial facility for sale in Units H & J, Hilton Park Industrial Estate, Church Farm Lane, East Wittering, West Sussex, PO20 8RL, PO20 — £1,485,000 • 1 bed • 1 bath • 12379 ft²
Warehouse for sale in Units 1-10, Block K, Southern Cross Trading Estate, Shripney Road, Bognor Regis, West Sussex, PO22 9SE, PO22 — £1,775,000 • 1 bed • 1 bath • 19980 ft²
Light industrial facility for sale in Unit 1, 4 Solent Road, Havant, PO9 1JH, PO9 — £1,500,000 • 1 bed • 1 bath • 8290 ft²
Light industrial facility for sale in Ellen Street Estate, Portslade, Brighton BN41 1DW, BN41 — £3,000,000 • 1 bed • 1 bath






































































