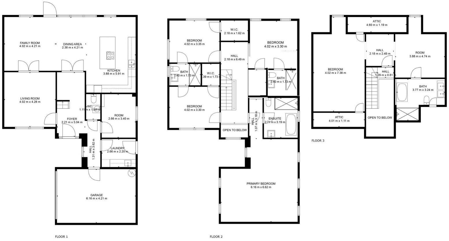
Private gated setting with extensive modern family living and garden.
- Five bedrooms, each with en-suite bathrooms
- Principal bedroom with dressing area and Velux balcony views
- Large open-plan kitchen/dining/living with kitchen island and bifolds
- Underfloor heating throughout all levels
- Garage with electric shutter and multiple parking spaces
- Located in private gated development with very large rear garden
- Broadband speeds reported as slow
- Marketing states new build; records show 2003–2006 construction
Set within a small gated development, this substantial five-bedroom detached house is arranged over three levels to suit modern family living. The home offers a generous open-plan kitchen, dining and living area with bifold doors to a large private garden and patio, plus a formal living room/snug and a ground-floor study for home working.
All five bedrooms have en-suite access, with the principal bedroom occupying the top floor and featuring an open dressing area, full bathroom en-suite and a Velux balcony window with woodland and river views. Practical comforts include a utility room, integral garage with electric shutter, off-street parking and underfloor heating on every level.
Buyers should note two factual issues: the marketing describes the property as a brand new build yet records indicate construction dated 2003–2006, and broadband speeds are reported as slow. The rear lawn is still establishing, though the patio has been completed with ceramic porcelain paving.
This property will suit a family wanting generous, contemporary living space in a peaceful, private setting with strong school options nearby and good local amenities. It also offers scope for cosmetic personalisation despite being finished to a high standard overall.
5 bedroom detached house for sale in Tawd Valley Park - West Lancashire WN8 — £725,000 • 5 bed • 4 bath • 3423 ft²
5 bedroom detached house for sale in Summer Street, Skelmersdale, WN8 — £725,000 • 5 bed • 4 bath • 3283 ft²
5 bedroom detached house for sale in Green Lane, Standish, WN6 — £925,000 • 5 bed • 2 bath • 2268 ft²
3 bedroom detached house for sale in Robin Hood Close, Mawdesley, L40 2RG, L40 — £565,000 • 3 bed • 4 bath • 1500 ft²
4 bedroom detached house for sale in High Street, Skelmersdale, WN8 — £425,000 • 4 bed • 2 bath • 1702 ft²
6 bedroom detached house for sale in Victoria Gardens, Waterside, Darwen, BB3 — £560,000 • 6 bed • 4 bath • 2566 ft²






























































































































