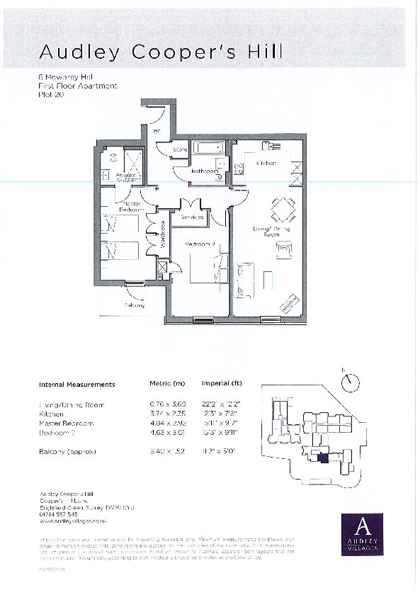
**Standout Features:**
- Spacious first-floor apartment with a south-facing balcony
- Two double bedrooms, including a main bedroom with an en suite
- High-end SieMatic kitchen with integrated Neff/Bosch appliances
- Underfloor heating and luxury Villeroy & Boch sanitaryware
- Located within the exclusive Coopers Hill retirement village, with extensive amenities
- Membership to Audley Club, featuring a restaurant, health club, and landscaped gardens
**Concerns:**
- High service charge and council tax
- Leasehold with a deferred management charge upon sale
This beautifully appointed apartment in the Coopers Hill retirement village offers a perfect blend of luxury and comfort. Spanning 990 square feet, it features two generous double bedrooms, including a master suite with an en suite bathroom. Enjoy cooking in the stylish SieMatic kitchen equipped with integrated Neff and Bosch appliances, all while basking in natural light from the south-facing balcony.
Ideally located amidst 67 acres of gated development, the property provides access to serene landscaped gardens and exceptional club facilities, enhancing the lifestyle of its residents. With excellent transport links to London and proximity to local attractions like Windsor Castle, you can enjoy both tranquility and convenience.
Fixtures like underfloor heating and premium fittings elevate this residence, exuding sophistication that appeals to discerning buyers. Consider the future potential for any personalized updates to make it your own. Don't miss this exclusive opportunity within an affluent community—it won't last long!
2 bedroom retirement property for sale in 27 Pembroke Court,Marshall Walk, TW20 0LL, TW20 — £599,950 • 2 bed • 2 bath • 905 ft²
2 bedroom retirement property for sale in Audley Coopers Hill, Englefield Green, TW20 — £650,000 • 2 bed • 2 bath • 925 ft²
2 bedroom retirement property for sale in 2 Mowbray Hall, Marshall Walk, Englefield Green Surrey, TW20 0LN , TW20 — £750,000 • 2 bed • 2 bath • 1057 ft²
2 bedroom retirement property for sale in 31 Pembroke Court, Marshall Walk, Englefield Green, Surrey,TW20 0LL, TW20 — £850,000 • 2 bed • 2 bath • 1118 ft²
2 bedroom retirement property for sale in 5 Pembroke Court, Marshall Walk, Englefield Green, Surrey,TW20 0LL, TW20 — £839,950 • 2 bed • 2 bath • 1211 ft²
2 bedroom retirement property for sale in Mowbray Hall, Englefield Green, TW20 — £895,000 • 2 bed • 2 bath • 1139 ft²






















































