Spacious layout with parking and garden, ready for improvement.
- Four bedrooms over two storeys, practical family layout
- One family bathroom serving four bedrooms
- Off-street driveway parking for multiple vehicles
- Good-sized rear garden with paved seating area
- Leased solar panels on roof; lease transfers on sale
- EPC rating E; potential for energy-efficiency upgrades
- Solid brick walls, likely no cavity insulation assumed
- Local area has higher-than-average crime; consider security
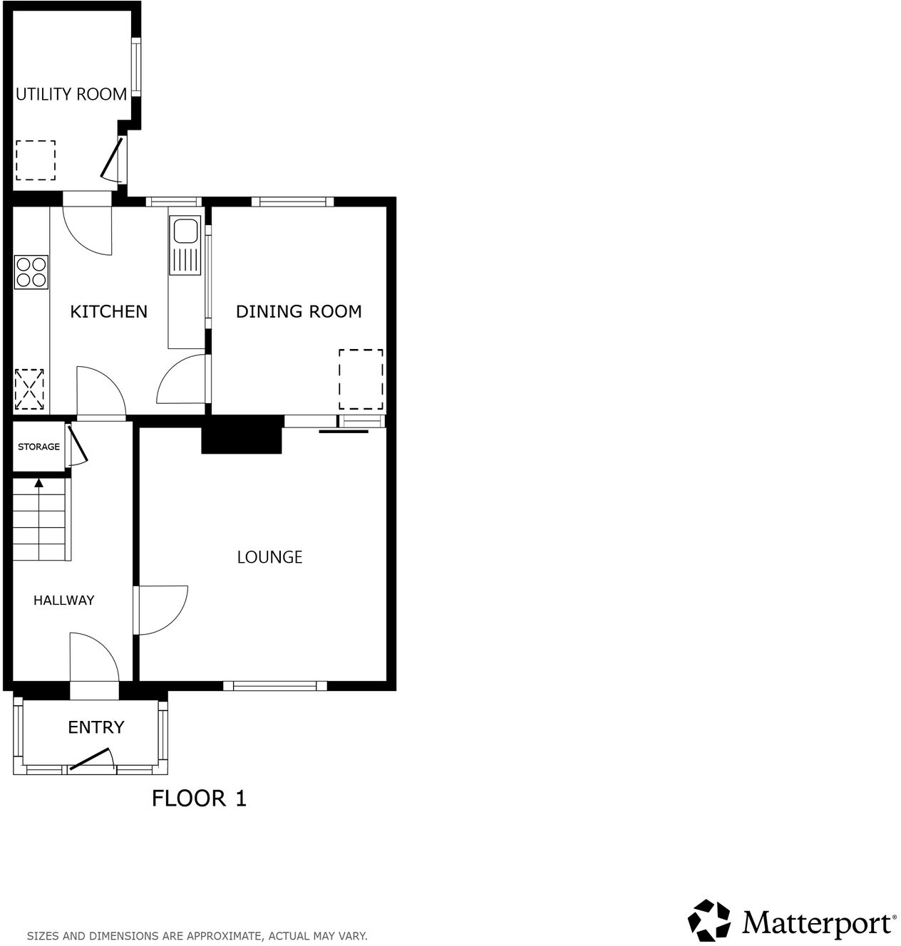
A spacious four-bedroom mid-terraced house on Hextall Road offering practical family accommodation across two storeys. The ground floor has separate lounge and dining spaces flowing into a fitted kitchen and utility room, while upstairs provides two double bedrooms plus two further bedrooms and a family bathroom.
The property benefits from off-street parking for multiple vehicles, a good-sized rear garden and leased solar panels on the roof which contribute to energy use. Solid brick construction and double glazing are in place, with mains gas central heating and a very low council tax band.
Buyers should note the EPC is rated E and the solar array is leased — lease terms and remaining costs will transfer with sale. There is just one bathroom for four bedrooms and the house would reward modest modernisation, particularly to heating efficiency and internal finishes. The area has good school options and fast broadband, though local crime rates are higher than average — factor in security improvements where needed.
This is a functional family home with parking, outdoor space and future improvement potential, suited to purchasers seeking space in Evington or investors targeting rental demand near local schools and transport links.
3 bedroom semi-detached house for sale in Welland Vale Road, Evington, Leicester, LE5 — £400,000 • 3 bed • 2 bath • 1367 ft²
3 bedroom terraced house for sale in Croyland Green, Thurnby Lodge, Leicester, LE5 — £230,000 • 3 bed • 1 bath • 897 ft²
5 bedroom semi-detached house for sale in Belvoir Drive, Leicester, LE2 — £460,000 • 5 bed • 2 bath • 2304 ft²
3 bedroom end of terrace house for sale in Newport Street, Leicester, LE3 — £190,000 • 3 bed • 1 bath • 969 ft²
3 bedroom detached bungalow for sale in Swinstead Road, Evington, Leicester, LE5 — £410,000 • 3 bed • 1 bath • 1216 ft²
4 bedroom semi-detached house for sale in Hollington Road, Evington, LE5 — £475,000 • 4 bed • 3 bath • 2088 ft²














































































