Renovation-ready rural home near coast and town amenities.
- Three bedrooms in a traditional stone semi-detached cottage
- Large south-facing garden and off-street parking
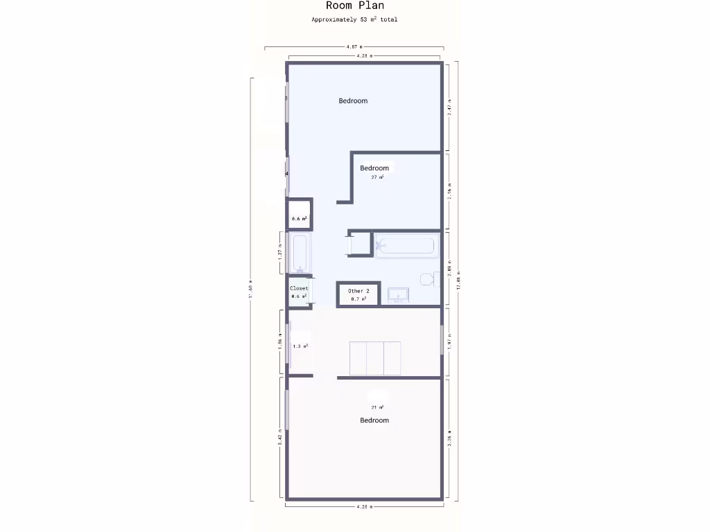
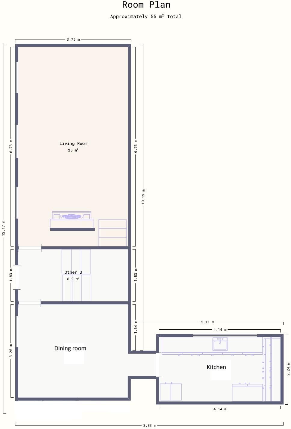
- Approximately 592 sqft; compact internal footprint
- Requires full renovation and modernisation throughout
- Granite walls likely uninsulated — insulation needed
- Current heating: electric storage heaters (higher running costs)
- Chain-free sale with easy access to Newlyn and Penzance
- Local area shows high deprivation; broadband and mobile average
Barn 7 at Trewarveneth Farm is a compact three-bedroom semi with a large south-facing garden and off-street parking, offered chain-free. Set in a traditional stone building likely constructed before 1900, the property is small (approx. 592 sqft) and arranged in a linear layout across two storeys. It will appeal to buyers seeking a renovation project with strong scope to improve layout, insulation and heating.
The house requires comprehensive renovation: decoration, new heating and likely insulation to the granite walls, and modernisation throughout. Heating is currently via electric storage heaters and glazing details are not defined. These are important factors for running costs and comfort but also create clear scope to add value through upgrade works.
Location is a genuine strength. The property sits close to Newlyn and Penzance with rail links and local amenities, and village schools with Good Ofsted ratings nearby. The setting is rural yet connected — ideal for buyers wanting countryside character with access to town services. Note the wider area records higher deprivation statistics, and mobile and broadband speeds are average.
This is a straightforward buy-for-renovation opportunity: small footprint, traditional stone character, a sunny private garden and parking. Buyers should budget for full refurbishment and energy-efficiency improvements but can create a comfortable three-bedroom home or a holiday let close to the coast.
2 bedroom semi-detached house for sale in Trewarveneth Farm, Newlyn, TR18 — £225,000 • 2 bed • 1 bath • 1077 ft²
1 bedroom terraced house for sale in Chapel Row, Tredavoe, Newlyn, Penzance, TR20 — £185,000 • 1 bed • 1 bath • 494 ft²
3 bedroom terraced house for sale in Tredavoe, Penzance, Cornwall, TR20 — £300,000 • 3 bed • 1 bath • 642 ft²
3 bedroom terraced house for sale in Park Terrace, Newlyn, TR18 — £210,000 • 3 bed • 1 bath • 915 ft²
4 bedroom detached house for sale in Tresvennack, Drift, TR19 6AL, TR19 — £775,000 • 4 bed • 2 bath • 1658 ft²
3 bedroom end of terrace house for sale in Plain-An-Gwarry, Marazion, TR17 0DR, TR17 — £325,000 • 3 bed • 1 bath • 689 ft²


















































































