Spacious family living close to parks, shops and good schools.
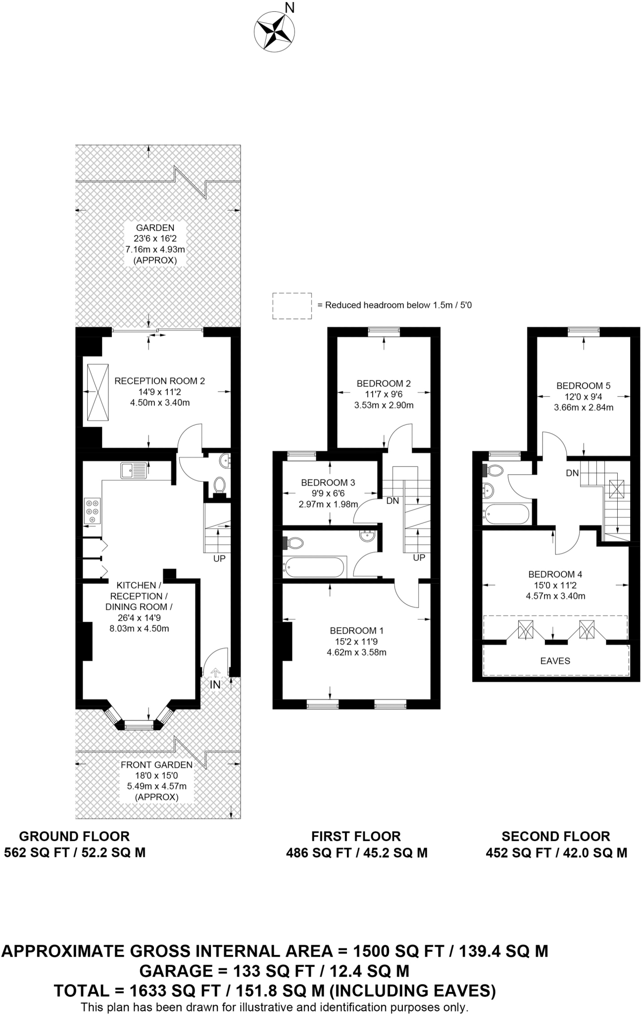
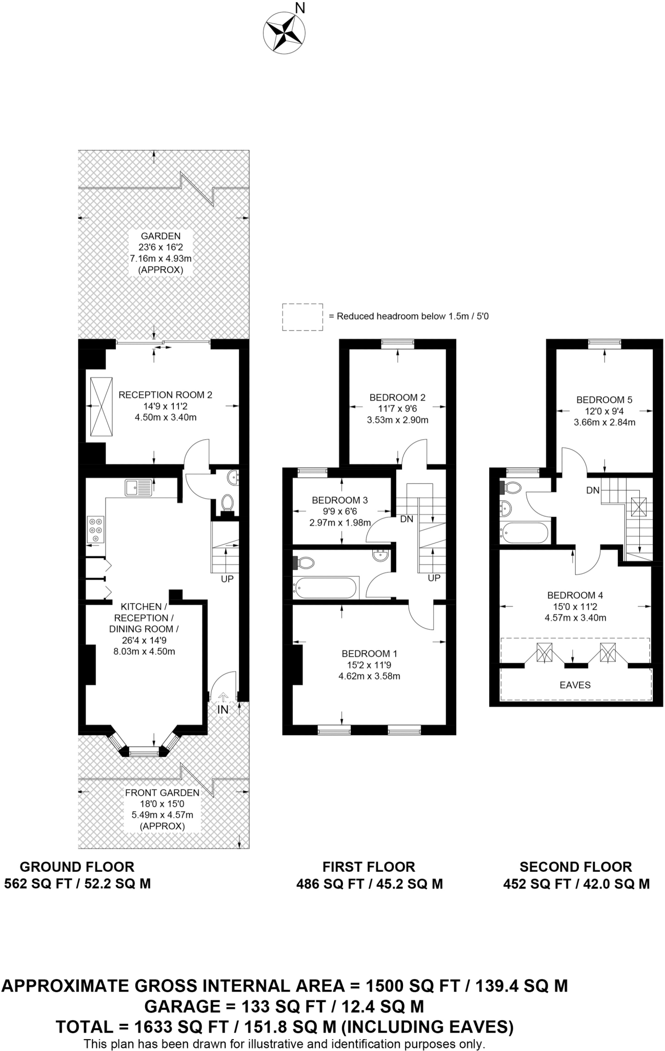
Five bedrooms across 1,633 sq ft, flexible family living
This well-presented five-bedroom end-of-terrace combines period character with a bright, contemporary finish across 1,633 sq ft. The house offers a large open-plan living area and a separate elegant reception room, making it easy to adapt space for family living or home working. The modern, fully fitted kitchen and two sleek bathrooms keep day-to-day life straightforward.
Set on Livingstone Road, the property sits in a commuter-friendly area close to shops, cafés and green spaces including Grangewood Park and Norbury Park. Local schools include several highly rated primaries and secondaries, and the area benefits from fast broadband, excellent mobile signal and low local crime—practical advantages for families.
A few practical points to note: the house dates from the early 20th century and has solid brick walls, which are typically uninsulated; the double glazing install date is unknown. Although beautifully finished, buyers should consider potential insulation or energy-improvement works. Freehold tenure and a decent private garden add long-term convenience and scope to personalise the home further.
3 bedroom terraced house for sale in Livingstone Road, Thornton Heath, CR7 — £460,000 • 3 bed • 1 bath • 1130 ft²
5 bedroom house for sale in Downsview Road, Upper Norwood, London, SE19 — £795,000 • 5 bed • 2 bath • 1626 ft²
5 bedroom terraced house for sale in Hillcote Avenue, Norbury, London, SW16 — £710,000 • 5 bed • 2 bath • 1794 ft²
5 bedroom terraced house for sale in Penrith Road, Thornton Heath, CR7 — £550,000 • 5 bed • 1 bath • 1199 ft²
5 bedroom semi-detached house for sale in Warwick Road, Thornton Heath, CR7 — £725,000 • 5 bed • 2 bath • 1977 ft²
5 bedroom end of terrace house for sale in Harrington Road, South Norwood, SE25 — £550,000 • 5 bed • 2 bath • 1201 ft²














































































































































































































































































































































































































































































































































































































































































































