Low‑carbon one‑bed apartment with balcony overlooking Kelham Island courtyard.
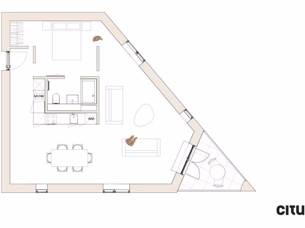
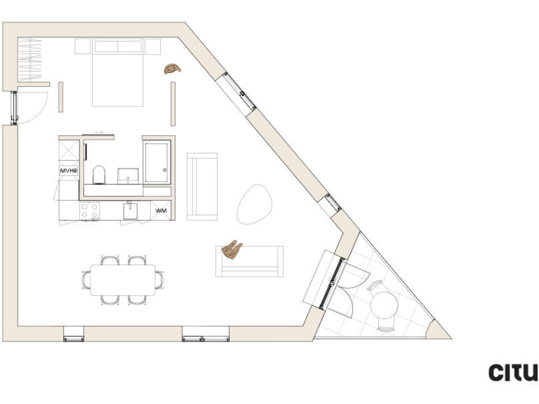
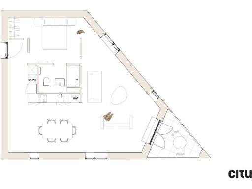
1. One-bedroom, one-bathroom new-build apartment, approx. 621 sq ft
2. Covered balcony with views over Kelham Island and courtyard
3. High-spec sustainability: solar panels, MVHR, high insulation, EV provision
4. Triple-glazed windows, timber flooring and open-plan living
5. Limited on-site parking — additional cost and first-come, first-served
6. Broadband speeds reported as very slow in the area
7. Located in a mixed-use regeneration area with good transport links
8. Local area recorded as very deprived — consider long-term resale factors
This one-bedroom new-build apartment in The Triangle offers a compact, contemporary home for a first-time buyer or city professional. The open-plan living, kitchen and dining area is bright and modern, with timber flooring and large triple‑glazed windows that maximise light and cut heat loss. A covered balcony gives an outdoor spot overlooking Kelham Island and the development’s landscaped courtyard.
The scheme prioritises low-running costs and sustainability: solar panels, high insulation, MVHR ventilation and EV charging provision. The triple‑aspect design and high-performance glazing improve comfort and energy efficiency, while communal green spaces provide a pocket of calm in this lively urban neighbourhood.
Be aware of a few practical considerations: broadband speeds in the area are reported as very slow, and on-site parking is limited and available at additional cost. The immediate neighbourhood is marked as very deprived, which may affect local services and resale dynamics. Tenure isn’t stated and should be confirmed before proceeding.
Purchasing here also brings community involvement: buyers join the development’s Community Interest Company, which gives residents shared influence over public spaces and some utilities. For those seeking a modern, low‑carbon city base within walking distance of Sheffield’s amenities and transport links, this apartment is a sensible, future‑focused choice.
1 bedroom apartment for sale in The Triangle, Kelham Central, S3 8FT, S3 — £290,000 • 1 bed • 1 bath • 709 ft²
Studio flat for sale in The Triangle, Kelham Central, S3 8FT, S3 — £235,000 • 1 bed • 1 bath • 555 ft²
3 bedroom house for sale in The Island, Kelham Central, S3 8FS, S3 — £535,000 • 3 bed • 3 bath • 1216 ft²
2 bedroom penthouse for sale in The Penthouse, The Triangle, Kelham Central, S3 8FT, S3 — £485,000 • 2 bed • 2 bath • 1160 ft²
3 bedroom terraced house for sale in 16 The Gardens, S3 8FR, S3 — £485,000 • 3 bed • 2 bath • 1302 ft²
2 bedroom terraced house for sale in 3 The Warehouse, S3 8FW, S3 — £325,000 • 2 bed • 2 bath • 816 ft²






















