Bright one-bedroom first-floor flat with private garden, minutes from Southbourne Grove and the beach..
Private first-floor garden apartment with its own entrance
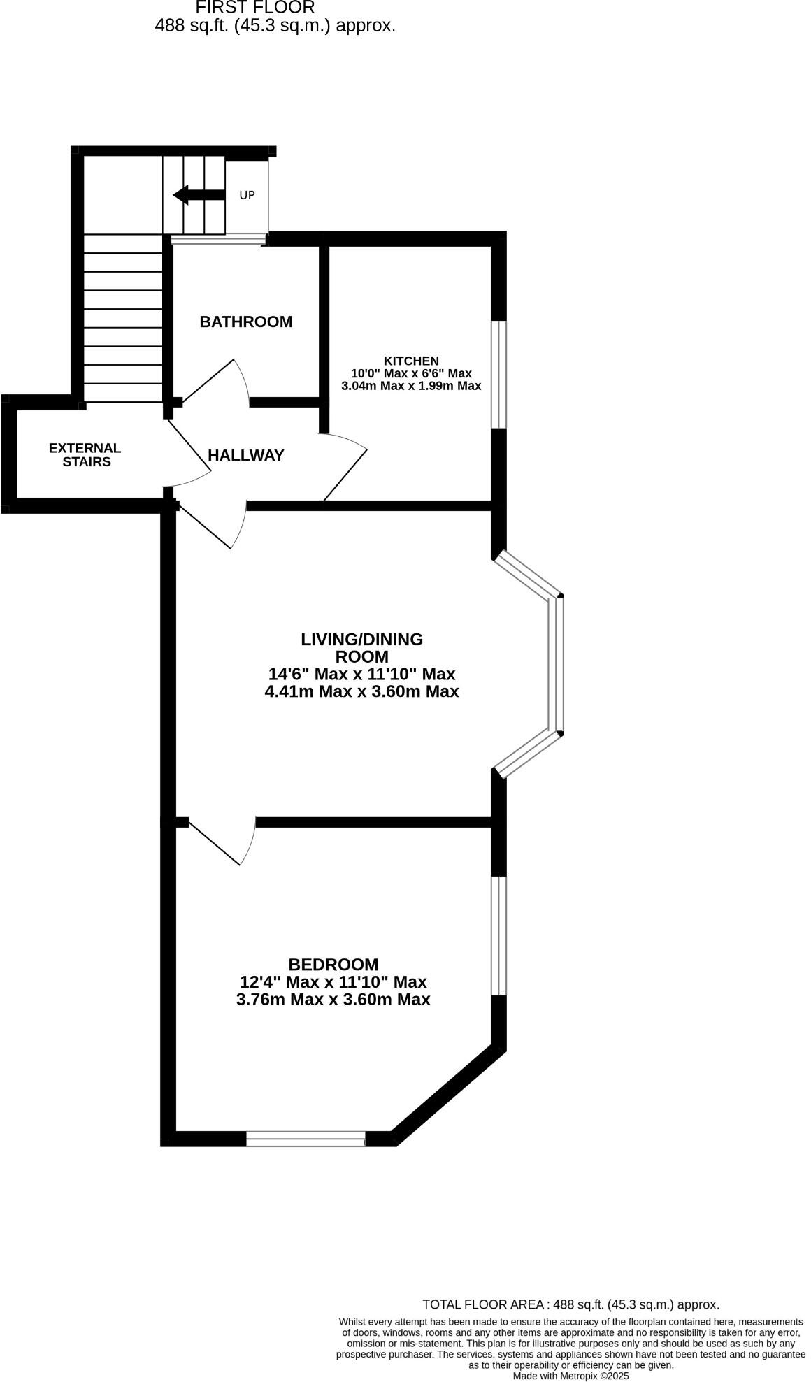
Light, well-proportioned and quietly tucked away, this one-bedroom first-floor garden apartment sits within easy walking distance of Southbourne Grove and award-winning beaches. The property benefits from its own private entrance via a shared external staircase, generous living/dining room with a feature bay window, a separate modern kitchen, and a sunny secluded garden – unusually private for a first-floor flat. Shared freehold and a long 115-year lease provide tenure stability.
Fresh and bright throughout, the apartment retains period character through high ceilings and large windows while offering practical modern comforts including double glazing and gas central heating. The bedroom comfortably fits a king-size bed and the reception room has space for full living and dining setups, making this a practical home for a single occupant or couple looking for seaside living close to local shops and transport.
Buyers should note a small number of practical considerations: access is via an external staircase (not ground-floor level), the service charge is payable on an "as & when" basis, and the EPC rating is currently TBC. Overall this is a straightforward, low-maintenance property with garden space and good local amenities, ideal for first-time buyers or those downsizing who prioritise location and light.
1 bedroom apartment for sale in Montague Road, Bournemouth, Dorset, BH5 — £240,000 • 1 bed • 1 bath • 610 ft²
1 bedroom apartment for sale in Newstead Road, Bournemouth, Dorset, BH6 — £196,000 • 1 bed • 1 bath • 500 ft²
2 bedroom apartment for sale in Stourcliffe Avenue, Bournemouth, Dorset, BH6 — £395,000 • 2 bed • 1 bath • 925 ft²
2 bedroom apartment for sale in Paisley Road, Bournemouth, BH6 — £325,000 • 2 bed • 2 bath • 696 ft²
1 bedroom flat for sale in Boscombe, BH1 — £145,000 • 1 bed • 1 bath • 374 ft²
2 bedroom flat for sale in Southbourne Road, Southbourne, BH6 — £300,000 • 2 bed • 1 bath • 742 ft²










































































