High-potential fixer-up in Haslingden ideal for seasoned investors.
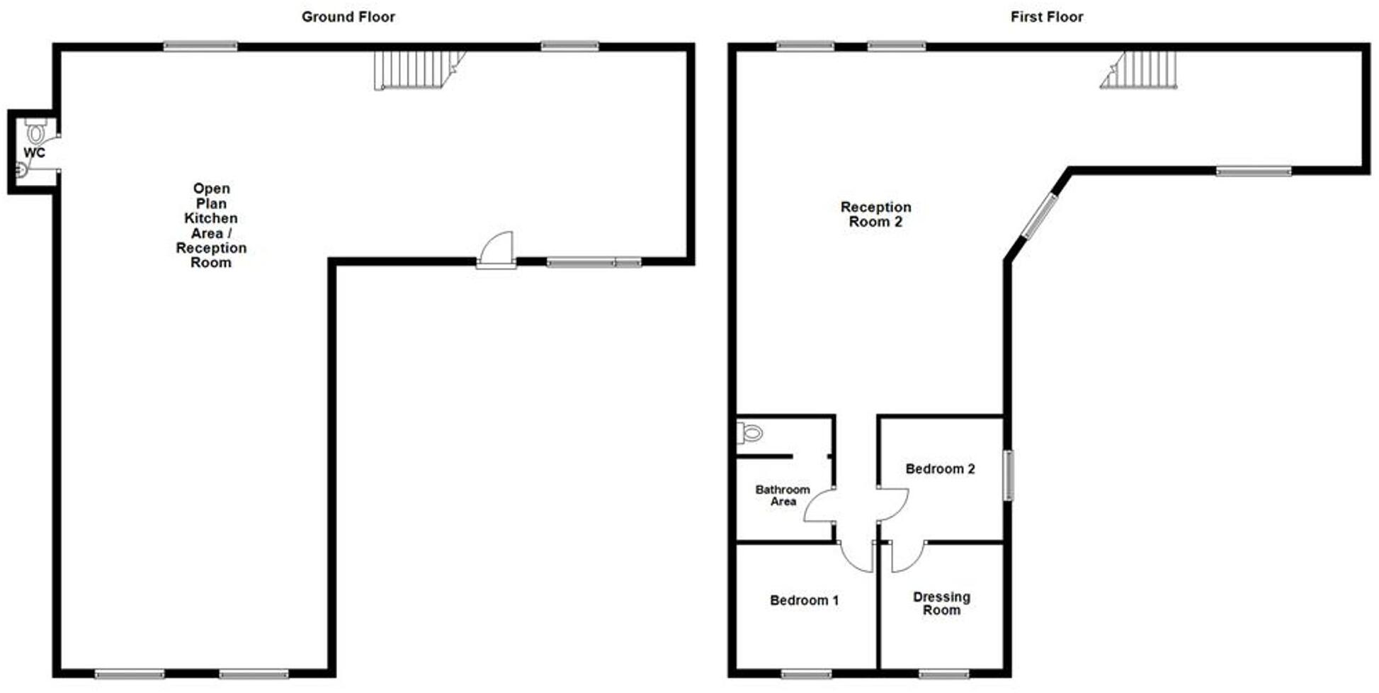
4 bedrooms, single bathroom — large internal space with high ceilings
Derelict condition: external and internal neglect, peeling paint, water damage
Damp issues present; significant renovation and possible structural works needed
Leasehold tenure — check terms before bidding
To be sold at online auction; completion required within 28 days
Buyer’s premium £6,000 (inc. VAT) payable in addition to sale price
Location in deprived area; local amenities and several good primary schools nearby
No flood risk; excellent mobile signal and fast broadband speeds
A four-bedroom terraced house in Haslingden offered as a derelict fixer-upper with clear redevelopment potential. The property is currently in poor condition throughout: exterior and interior show significant neglect, water damage and damp; major renovation works will be required to make it habitable or lettable. The building’s industrial-style interior, high ceilings and exposed brick could suit a creative conversion or subdivided rental units, subject to planning and building regulation approval.
Sold by online auction on unconditional terms, this lot requires completion within 28 days and carries a non-refundable buyer’s premium of £6,000 (including VAT) payable on the sale. The property is leasehold and located in a deprived area of mixed terraces. Local amenities and several primary and secondary schools — including a top 10% primary — are nearby, but the neighbourhood classification points to economic challenges that will affect rental demand and resale expectations.
This is a clear-buy opportunity for experienced investors or developers prepared to manage a full refurbishment, structural and damp repairs, and leasehold complexities. Factor in immediate repair costs, potential remediation work, and the auction fees when assessing outlay and predicted returns. For those able to invest time and capital, the site offers scope to add value through conversion, renovation and repositioning within the local rental market.
3 bedroom terraced house for sale in Blackburn Road, Haslingden, BB4 — £80,000 • 3 bed • 2 bath • 1098 ft²
2 bedroom terraced house for sale in Pine Street, Haslingden, BB4 — £70,000 • 2 bed • 1 bath
2 bedroom terraced house for sale in 97 Manchester Road, Haslingden, BB4 6NP, BB4 — £90,000 • 2 bed • 1 bath • 792 ft²
1 bedroom house for sale in Primrose Street, Bacup, OL13 — £70,000 • 1 bed • 1 bath • 646 ft²
2 bedroom end of terrace house for sale in Holcombe Road, Rossendale, BB4 — £115,000 • 2 bed • 1 bath
1 bedroom terraced house for sale in Derby Street, Accrington, Lancashire, BB5 — £43,000 • 1 bed • 1 bath • 582 ft²


































































