Quiet cul-de-sac location with large driveway and sunny garden for family life.
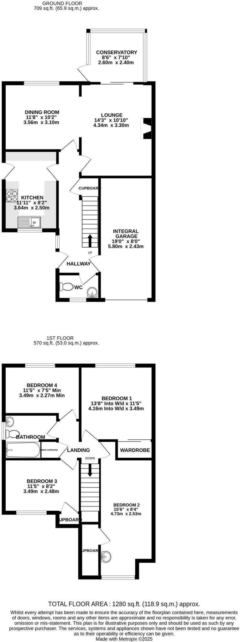
- Detached four-bedroom family house in quiet Parkwood cul-de-sac
- Sunny east-facing rear garden approx 47ft x 32ft
- Large block-paved driveway; integral garage used for storage/utility
- Open-plan lounge/diner plus conservatory overlooking garden
- Single family bathroom only; four bedrooms may strain shared facilities
- Property approx 901 sq ft — relatively small for four doubles
- Dated internal décor; scope and need for modernisation to add value
- Council tax above average for the area
This detached four-bedroom home on Parker Close offers a spacious family layout in a quiet Parkwood cul-de-sac. The ground floor features an open-plan lounge/diner, a sunny conservatory overlooking an east-facing garden of approximately 47ft x 32ft, plus a country-style kitchen and convenient downstairs W/C. An integral garage is currently used as storage/utility space and large block-paved driveway provides multiple off-street parking spaces.
Upstairs are four double bedrooms and a single family bathroom with shower-over-bath; three bedrooms have built-in storage and the second bedroom includes a handy wash basin. The property was built in the 1980s, has double glazing installed post-2002, cavity wall insulation (assumed) and mains gas central heating, making it comfortable for everyday family living.
Practical notes: the house measures about 901 sq ft (relatively small for four doubles), décor in places is dated and would benefit from modernisation to maximise value. Council tax is above average for the area, and the integral garage’s current use reduces vehicle storage. Overall this home suits a family wanting good local schools, shops and transport links with scope to update interiors and add personal style.
Location strengths include easy walking access to Parkwood Shopping Centre, nearby primary and secondary schools (most rated Good), low local crime and fast broadband/mobile signal. The plot provides a decent rear garden with established shrubs and mature trees, ideal for morning sun and family outdoor use.
4 bedroom detached house for sale in Idenwood Close, Rainham, ME8 — £425,000 • 4 bed • 1 bath • 1303 ft²
4 bedroom link detached house for sale in Queendown Avenue, Rainham, ME8 — £500,000 • 4 bed • 2 bath • 1134 ft²
3 bedroom terraced house for sale in Conyers Walk, Parkwood, Gillingham, ME8 — £290,000 • 3 bed • 1 bath • 812 ft²
3 bedroom semi-detached house for sale in Cheney Close, Parkwood, ME8 — £350,000 • 3 bed • 2 bath • 811 ft²
4 bedroom detached house for sale in First Avenue, Gillingham, ME7 — £500,000 • 4 bed • 3 bath • 1858 ft²
4 bedroom detached house for sale in Ufton Close, Maidstone, ME15 — £585,000 • 4 bed • 2 bath • 1543 ft²






























































