HD8 9SU - 4 bedroom detached house for sale in Stringer House Lane, E…

View on Property Piper

4 bedroom detached house for sale in Stringer House Lane, Emley, Huddersfield, HD8

Summary - BROOMFIELD FARM, STRINGER HOUSE LANE, HUDDERSFIELD, EMLEY HD8 9SU

4 bed 3 bath Detached

**Standout Features:**
- Spacious four-bedroom detached home extending nearly 2,600 sq ft
- Two en suites and a main house bathroom
- Extensive rear garden with paddock and stable yard
- Separate field of 1.3 acres offering stunning countryside views
- Modern farmhouse kitchen with open-plan layout and quality finishes
- Convenient off-street parking with double garage
- Located in the scenic rural village of Emley, close to amenities and major motorways

Offering a stunning lifestyle in the idyllic rural village of Emley, this spacious four-bedroom detached home provides a generous living space ideal for families or equestrian enthusiasts. The nearly 2,600 square feet layout features a grand reception hall, a cozy living room with wood burner, a modern farmhouse kitchen with high-end finishes, and a beautiful garden room that leads you directly to the expansive rear garden. Two of the four well-proportioned bedrooms boast en suite bathrooms, catering to both comfort and convenience.

Set within a substantial plot that includes a paddock, stable yard, and an additional 1.3-acre field, this property offers an unprecedented opportunity for outdoor enjoyment and potential equestrian use. Enjoy breathtaking views of the Emley Moor Mast while taking advantage of the nearby local amenities. Ideal for those seeking tranquility in a growing hamlet, this home not only boasts ample parking with a double garage but also offers substantial renovation potential for future personalization or expansion. Properties like this are rare—act quickly to seize this opportunity for a countryside retreat perfect for family living.

Property Details

Brochure Descriptions

Image Descriptions

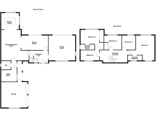
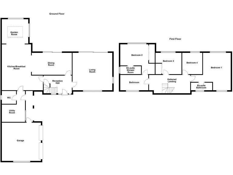
Floorplan Description

Rooms

Textual Property Features

Detected Visual Features

EPC Details

Nearby Schools

Nearest Bars And Restaurants

,,,,}

Nearest General Shops

,,}

Nearest Grocery shops

,,}

Nearest Supermarkets

,,}

Nearest Religious buildings

,,}

Nearest Medical buildings

,,,}

Nearest Airports

}

Nearest Leisure Facilities

,,,,}

Nearest Tourist attractions

,,}

Nearest Train stations

,,,,}

Nearest Bus stations and stops

,,,,}

Nearest Hotels

,,}

Tags

Local Market Stats

Similar Properties

Meta

High Res Images

Compatible Images

Low res Images

Thumbnails

Raw Images

High Res Floorplan Images

Compatible Floorplan Images

Low res Floorplan Images

FloorplanImages Thumbnail

Raw Floorplan Images