NR11 7EA - 4 bedroom detached bungalow for sale in Bridge Road, Colby,…

View on Property Piper

4 bedroom detached bungalow for sale in Bridge Road, Colby, Norwich, NR11

Summary - Shallow Brook, Bridge Road, Colby NR11 7EA

4 bed 2 bath Detached Bungalow

**Standout Features:**
- Detached bungalow on a generous 1.3-acre plot
- Four spacious bedrooms with two modern bathrooms
- Stunning countryside views with mature landscaped gardens
- Potential for annex conversion with garage and additional room above
- Conveniently located near local schools with 'Good' ratings

This beautifully presented detached bungalow in the peaceful village of Colby offers a perfect blend of space, comfort, and scenic beauty. This impressive property offers four well-sized bedrooms and two stylish bathrooms, providing ample accommodation for families or those looking for extra space. The contemporary interiors feature high ceilings and period detail, including a Georgian living room with a cozy multifuel wood burner.

Set on a sprawling 1.3-acre plot, the property boasts landscaped gardens with two ponds and a variety of mature vegetation. The insulated workshop, summerhouse, and shed provide ideal spaces for hobbies or outdoor entertaining. With great annex potential via the large garage, this property is perfect for guests or extended family living.

Embrace a tranquil rural lifestyle while being conveniently located between Aylsham and North Walsham, and just a short walk from the local primary school. With low crime rates and a welcoming community, this property represents an exceptional opportunity to create your dream home in an exclusive setting. Don't miss out – unique properties like this are in high demand!

Property Details

Brochure Descriptions

Image Descriptions

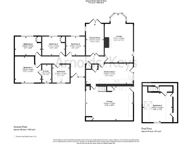
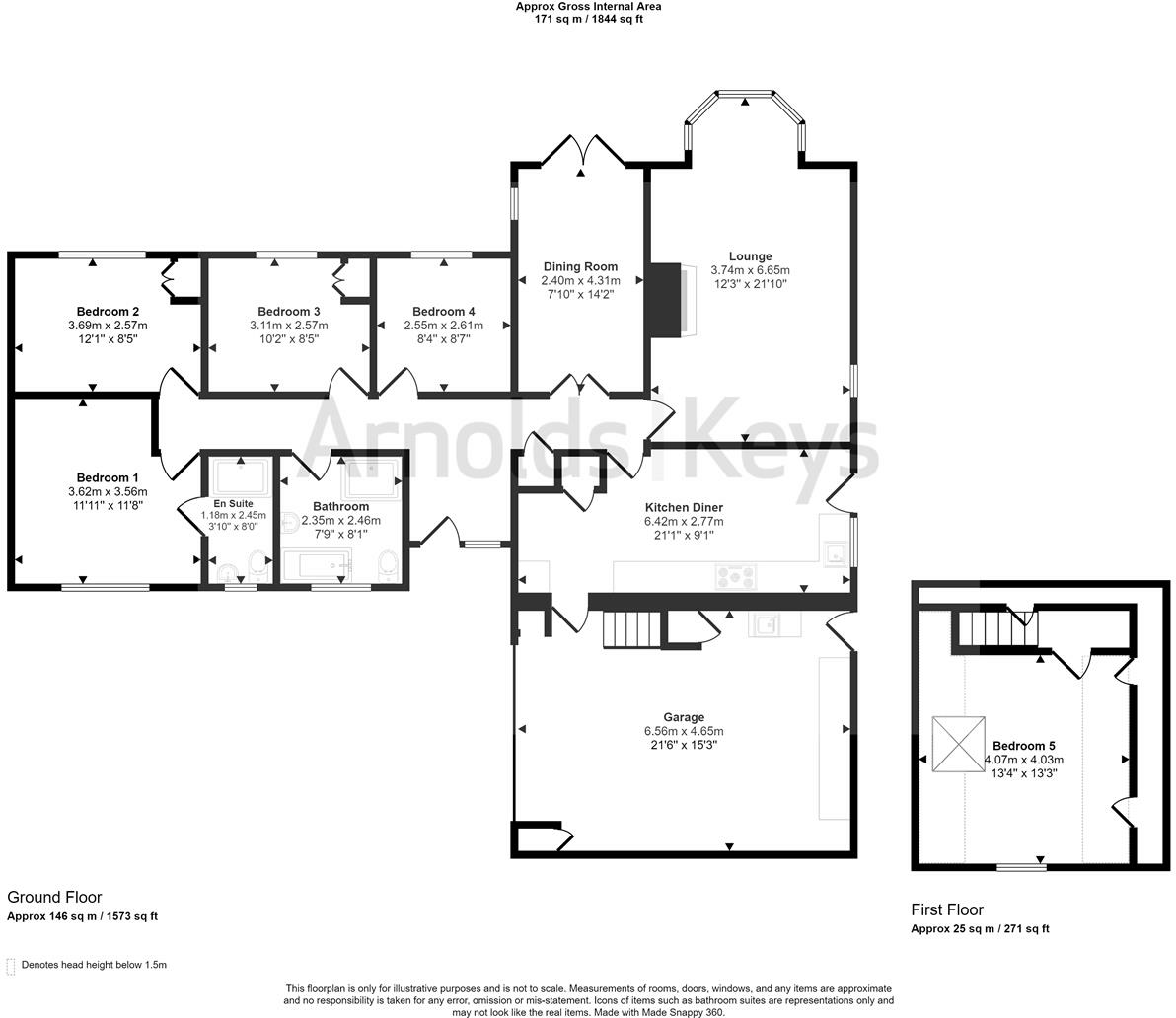
Floorplan Description

Rooms

Textual Property Features

Detected Visual Features

EPC Details

Nearby Schools

Nearest Bars And Restaurants

,,,,}

Nearest General Shops

,,}

Nearest Grocery shops

,,}

Nearest Supermarkets

,,}

Nearest Religious buildings

,,}

Nearest Medical buildings

,,,}

Nearest Leisure Facilities

,,,,}

Nearest Tourist attractions

,,}

Nearest Train stations

,,,,}

Nearest Bus stations and stops

,,,,}

Nearest Hotels

,,}

Tags

Local Market Stats

AirBnB Data

Similar Properties

Meta

High Res Images

Compatible Images

Low res Images

Thumbnails

Raw Images

High Res Floorplan Images

Compatible Floorplan Images

Low res Floorplan Images

FloorplanImages Thumbnail

Raw Floorplan Images