Renovated single-storey home with conservatory and woodland views.
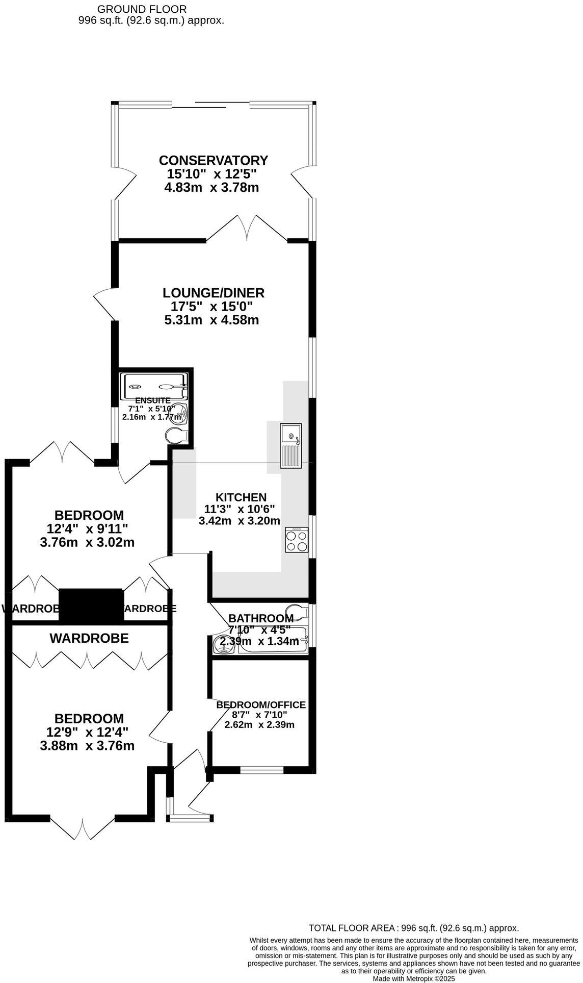
Three bedrooms, two bathrooms including en-suite
Set in peaceful Sennybridge within the Brecon Beacons National Park, this extended three-bedroom semi-detached bungalow offers comfortable single-storey living and attractive woodland views. The recently modernised open-plan kitchen/living/dining room and large conservatory create a bright social heart, ideal for family meals and entertaining. Two double bedrooms have built-in wardrobes and patio doors to the outside; the third bedroom is well suited as a home office or guest room. Practical features include an en-suite shower room plus a fully tiled main bathroom, off-street parking and a private decked seating area overlooking mature woodland and the river below. Buyers should note practical considerations: heating is oil-fired with a boiler and radiators, broadband speeds are slow, and the property dates from the late 1970s with partial cavity wall insulation and unknown double-glazing installation dates. The village location brings very low crime and local amenities, but the surrounding area scores high on deprivation metrics and services beyond basics are in Brecon, nine miles away. Overall, this deceptively spacious, newly renovated bungalow will suit families or downsizers seeking peaceful countryside living with ready-to-enjoy, flexible accommodation, but those wanting fast broadband or a mains gas network should be aware of the property’s current limitations.
4 bedroom detached bungalow for sale in Sennybridge, Brecon, Powys., LD3 — £465,000 • 4 bed • 3 bath • 2022 ft²
3 bedroom semi-detached house for sale in Coedwaungar, Sennybridge, Brecon, LD3 — £219,950 • 3 bed • 2 bath • 1078 ft²
2 bedroom semi-detached bungalow for sale in Beech Grove, Brecon, LD3 — £265,000 • 2 bed • 1 bath • 531 ft²
3 bedroom bungalow for sale in Beacons Park, Brecon, Powys, LD3 — £320,000 • 3 bed • 2 bath • 1102 ft²
3 bedroom bungalow for sale in Beech Grove, Brecon, Powys., LD3 — £350,000 • 3 bed • 2 bath • 689 ft²
3 bedroom detached bungalow for sale in Pendre Gardens, Brecon, LD3 — £340,000 • 3 bed • 1 bath • 905 ft²


































































