**Property Highlights:**
- **Size**: 0.6 acres (2286 sq ft) with room for extensive parking
- **Bedrooms**: 5 | **Bathrooms**: 3
- **Condition**: Requires significant renovation and modernization
- **Setting**: Semi-rural location with a southerly rear aspect and views over a paddock
- **Accessibility**: Close to Grateley railway station and the A303 for easy commuting
- **Local Amenities**: Nearby villages provide essential services and schools with good Ofsted ratings
- **Potential**: Extensive renovation opportunities to create a modern family dwelling
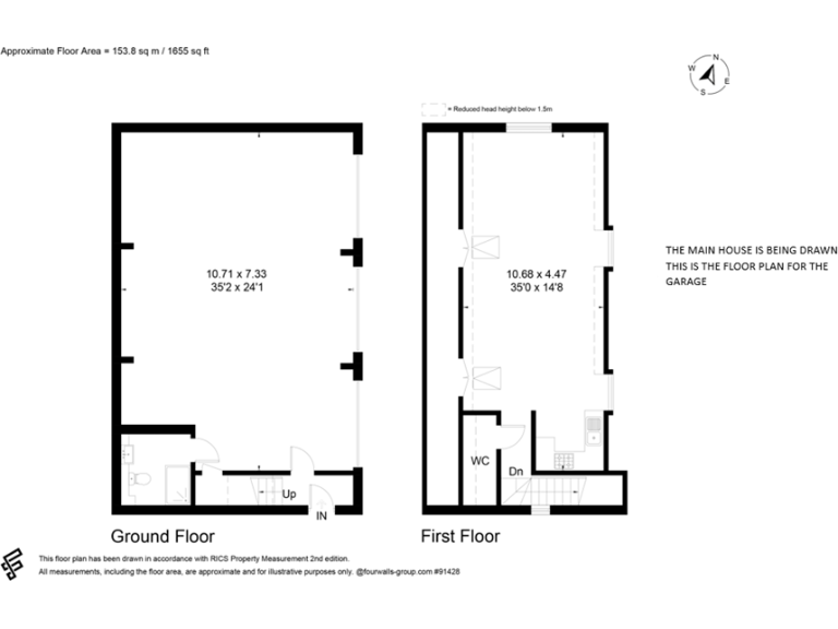
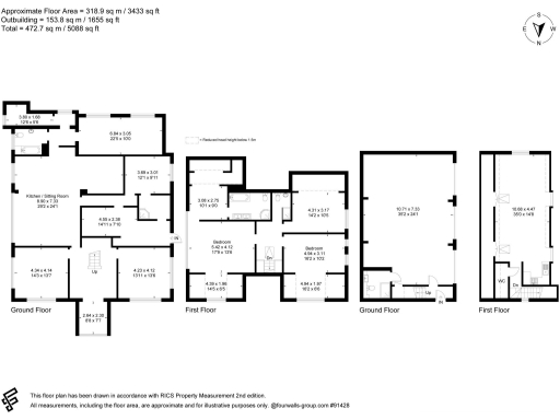
This large detached property in Lopcombe, Salisbury, is a hidden gem set on 0.6 acres of land, boasting enormous potential to transform it into a stunning family residence. Originally a home with a diner, this property is currently uninhabitable and needs considerable renovation, but it presents a unique opportunity for creative buyers ready to breathe new life into it. The house itself features an unfinished detached garage with a large room above, allowing for possible reconfiguration or conversion.
Nestled away from the main road, it offers a sense of tranquility while maintaining good access to nearby towns and essential amenities. Families will appreciate the proximity to reputable primary schools in the surrounding villages. Although broadband speeds are slow, mobile signal is excellent, ensuring connectivity for those who need it. This property isn’t just a house; it’s a canvas for your vision—a rare find in the established farming community of this affluent area. Act quickly; opportunities to create your dream home in such a sought-after location are few and far between!
4 bedroom detached house for sale in Station Road, Over Wallop, Stockbridge, Hampshire, SO20 — £350,000 • 4 bed • 1 bath • 1350 ft²
3 bedroom bungalow for sale in Weston Lane, Winterslow, Salisbury, Wiltshire, SP5 — £740,000 • 3 bed • 1 bath • 1764 ft²
3 bedroom detached house for sale in Doctors Hill, Sherfield English, Romsey, Hampshire, SO51 — £800,000 • 3 bed • 2 bath • 2182 ft²
3 bedroom detached house for sale in Stockbridge Road, Lopcombe, Salisbury, Hampshire, SP5 — £595,000 • 3 bed • 2 bath • 1395 ft²
4 bedroom detached house for sale in Kentsboro, Middle Wallop, Stockbridge, Hampshire, SO20 — £795,000 • 4 bed • 3 bath • 3668 ft²
3 bedroom bungalow for sale in Farm Road, Little Park, Andover, Hampshire, SP11 — £695,000 • 3 bed • 2 bath • 1150 ft²














































