ML6 6AZ - 2 bedroom flat for sale in 80 Johnston Street, ML6

View on Property Piper

2 bedroom flat for sale in 80 Johnston Street, ML6

Summary - FLAT A, 80, JOHNSTON STREET ML6 6AZ

2 bed 1 bath Flat

**Standout Features:**
- Newly renovated two-bedroom ground floor flat
- Modern kitchen with white cabinets and grey countertops
- Stylish, contemporary bathroom
- Excellent storage and freshly updated flooring throughout
- Off-street parking and well-maintained communal grounds
- Centrally located with easy access to amenities and transport
- Ideal for first-time buyers, downsizers, or investors

**Summary:**
Discover this beautifully renovated two-bedroom flat on Johnston Street, Airdrie, perfect for first-time buyers or investors seeking quality and comfort. This light-filled ground floor space features a brand-new modern kitchen and bathroom, complemented by tasteful finishes and impeccable detailing throughout. With a total size of 481 square feet, it offers functional living without compromising on style, showcasing efficient storage solutions to keep your home organized.

Located at the heart of Airdrie, you'll find convenient amenities just steps away, including shops, restaurants, and excellent transport links, making daily life a breeze. Residents will appreciate off-street parking and access to well-kept communal gardens, providing a peaceful retreat within an urban setting.

While the area is characterized as a challenged transitional neighborhood, the affordability of this flat paired with very low council tax makes it an attractive option for those looking to invest in their future or downsize comfortably. Don’t miss your chance—schedule a viewing and envision your new life in this charming property that combines modern living with accessibility.

Property Details

Image Descriptions

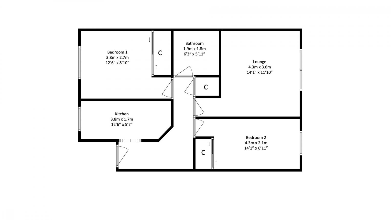
Floorplan Description

Rooms

Textual Property Features

Detected Visual Features

Nearest Bars And Restaurants

,,,,}

Nearest General Shops

,,}

Nearest Grocery shops

,,}

Nearest Supermarkets

,,}

Nearest Religious buildings

,,}

Nearest Medical buildings

,,,}

Nearest Airports

,}

Nearest Leisure Facilities

,,,,}

Nearest Tourist attractions

,,}

Nearest Train stations

,,,,}

Nearest Bus stations and stops

,,,,}

Nearest Hotels

,,}

Tags

Local Market Stats

Similar Properties

Meta

High Res Images

Compatible Images

Low res Images

Thumbnails

Raw Images

High Res Floorplan Images

Compatible Floorplan Images

Low res Floorplan Images

FloorplanImages Thumbnail

Raw Floorplan Images