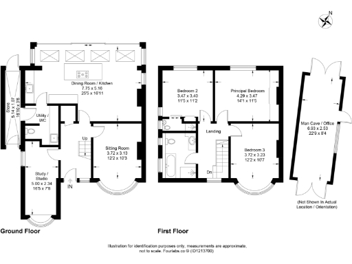
Spacious three‑bedroom house with validated plans for five bedrooms and annexe option.
Full planning permission validated for two‑storey extension to create five bedrooms
Open‑plan kitchen/family room with Bora hob and large glazed doors
Large terrace with covered seating area, pond and water feature
Detached garden office / mancave and separate store room
Quiet cul‑de‑sac location opposite open farmland, generous corner plot
Freehold; circa 1,726 sq ft; mid‑century build, double glazed (date unknown)
Purchaser fee 1.5% plus VAT payable on completion — a material additional cost
Council tax above average; extension requires construction costs to realise value
Set at the end of a peaceful cul‑de‑sac in prestigious Little Aston, this well‑presented three‑bedroom detached house occupies a generous corner plot with private landscaped gardens and a large terrace overlooking a water feature. The architecturally designed open‑plan kitchen/family room features a recently installed kitchen with statement island and integrated Bora hob, with full‑height glazing and sliding doors that create strong indoor–outdoor flow.
Full planning permission (Lichfield Council ref 04/01372/FUL) is validated and activated for a two‑storey extension, allowing conversion to a five‑bed, three‑bathroom house or an alternative first‑floor annexe – a clear opportunity for multigenerational living or added value. The plot includes a detached garage currently used as a garden office/mancave and additional stores, plus a paved area suitable for a gym or studio.
Practical details: the property is freehold, approximately 1,726 sq ft, built mid‑20th century, double glazed (installation date unknown), gas‑fired central heating with boiler and radiators, fast broadband and low local crime. It is a short walk to local shops, parkland and the train station, and is close to several well‑rated schools including an outstanding grammar school.
Important considerations: the sale is subject to a purchaser fee of 1.5% plus VAT payable on completion. Council tax is above average. While the house is presented in good order, the activated planning permission assumes future construction works to realise the five‑bed potential, and some buyers may prefer to factor renovation and build costs into their budget. Mobile signal is average in the area.
5 bedroom detached house for sale in Aldridge Road, Little Aston, WS9 0PE, WS9 — £1,395,000 • 5 bed • 4 bath • 3401 ft²
4 bedroom detached house for sale in Walsall Road, Little Aston, Sutton Coldfield., B74 — £900,000 • 4 bed • 3 bath • 3207 ft²
3 bedroom detached bungalow for sale in Forge Lane, Little Aston, Sutton Coldfield, B74 — £825,000 • 3 bed • 2 bath • 2497 ft²
5 bedroom detached house for sale in Newick Avenue, Little Aston, Sutton Coldfield, B74 — £1,500,000 • 5 bed • 3 bath • 5516 ft²
5 bedroom detached house for sale in Claverdon Drive, Little Aston, B74 — £1,250,000 • 5 bed • 3 bath • 2697 ft²
4 bedroom semi-detached house for sale in Little Aston Lane, Little Aston, B74 — £685,000 • 4 bed • 3 bath • 1936 ft²






























































































































