Chain-free two-bed bungalow on a large plot, ready for modernisation in Albrighton.
Two double bedrooms, single-storey living
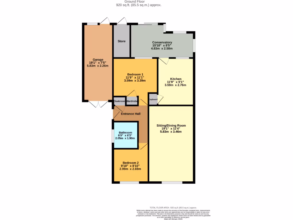
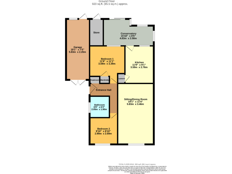
This two-bedroom detached bungalow sits on a large plot at the end of a quiet cul-de-sac in the sought-after village of Albrighton. The single-storey layout includes a spacious lounge/diner, conservatory, kitchen, two double bedrooms and a shower room, offering comfortable, level living suitable for downsizers or anyone seeking one-floor accommodation.
The property is chain free and benefits from solar panels, an imprinted concrete driveway, side garage and private rear garden – features that add practical value and scope for improvement. It is conveniently placed for local shops, a doctors’ surgery and Albrighton train station, with Wolverhampton and Telford roughly 20 minutes away.
The bungalow requires modernisation throughout: internal decor is dated and the home will suit a buyer prepared to renovate. Energy performance details are not provided in the listing. Viewings are by open afternoon appointment; this is a clear renovation opportunity in a peaceful, low-crime location.
Overall, the house offers solid bones, single-storey convenience and a large plot with potential for landscaping or extension subject to consents. Buyers should factor in refurbishment costs and inspect services and energy performance as part of any purchase decision.
3 bedroom detached house for sale in Bushfield Road, Albrighton, WV7 — £325,000 • 3 bed • 1 bath • 714 ft²
2 bedroom detached bungalow for sale in Windsor Road, Albrighton, WV7 — £295,000 • 2 bed • 1 bath • 991 ft²
2 bedroom detached bungalow for sale in Botfield Close, Albrighton, WV7 — £250,000 • 2 bed • 1 bath • 937 ft²
3 bedroom detached bungalow for sale in Cross Road, Albrighton, WV7 — £475,000 • 3 bed • 1 bath • 824 ft²
3 bedroom detached bungalow for sale in Woodland Close, Albrighton, Wolverhampton, WV7 — £440,000 • 3 bed • 2 bath • 1061 ft²
2 bedroom terraced bungalow for sale in Elm Road, Albrighton, WV7 — £235,000 • 2 bed • 1 bath • 750 ft²






































