Spacious listed townhouse with garden, parking and generous period rooms.
Grade II listed early 19th-century townhouse with many period features
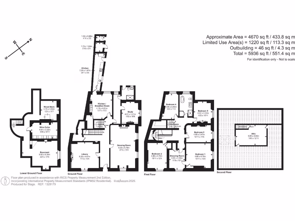
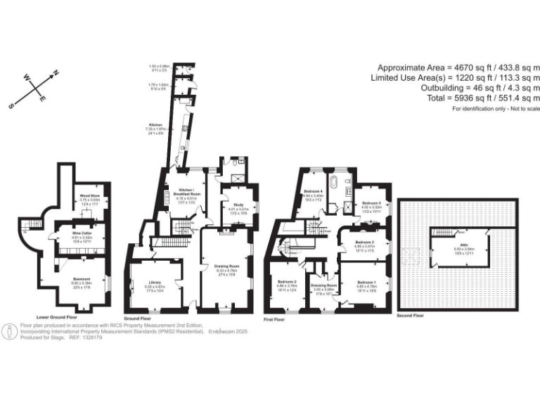
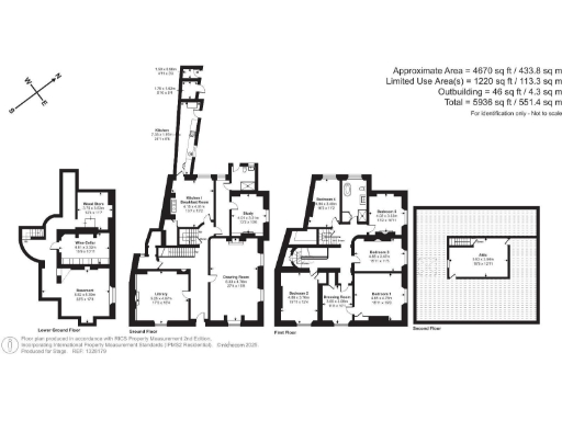
Windwhistle House is an imposing early 19th-century Grade II listed townhouse occupying a large corner plot on Wellington’s High Street. The house retains abundant period character — high ceilings, full-height sash windows, ornate cornices, a 180-degree staircase and marble fireplace — and offers substantial accommodation across lower-ground, ground and upper floors including five bedrooms, two bathrooms, a drawing room, library, study, cellar wine store and attic storage.
Practical strengths include off-street parking for multiple vehicles, a south-facing patio with landscaped garden, good road links to the M5 and fast broadband and mobile coverage. The property is freehold and provides generous storage and flexible room layouts that suit a large family or buyers seeking a character home with scope for sympathetic updating.
Important practical considerations are clear and should guide viewings: the house is Grade II listed, which will restrict alterations and can increase maintenance and repair costs. The property is EPC-exempt. It sits in an area recorded as very deprived with a higher local crime level; these factors may affect insurance, resale and rental prospects. Council Tax is band F (expensive). The scale and age of the house means sensitive conservation work and ongoing upkeep are likely.
This is a property for purchasers who value authentic period architecture and generous proportions and who are prepared for the responsibilities of listed ownership. It offers strong character, parking and garden space in a central, well-connected town location, but requires buyers to factor in listing constraints, maintenance needs and local area challenges.
4 bedroom detached house for sale in Bulford, Wellington, TA21 — £525,000 • 4 bed • 1 bath • 1319 ft²
4 bedroom terraced house for sale in North Street, Wellington, Somerset, TA21 — £230,000 • 4 bed • 1 bath • 1161 ft²
4 bedroom terraced house for sale in Station Road, Wellington, TA21 — £425,000 • 4 bed • 3 bath • 1600 ft²
5 bedroom semi-detached house for sale in Waterloo Road, Wellington, TA21 — £450,000 • 5 bed • 2 bath
5 bedroom detached house for sale in Bramley Close, Wellington, TA21 — £450,000 • 5 bed • 4 bath • 1791 ft²
6 bedroom end of terrace house for sale in High Street, Wellington, TA21 — £325,000 • 6 bed • 3 bath • 791 ft²


























































































