Single-storey living with garden room and home office near parks and schools.
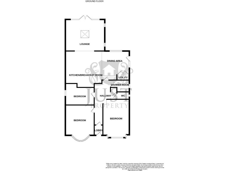
Three double bedrooms, single-level living
New rear extension with open-plan kitchen/dining
Fully insulated home office with power
Large private rear garden and insulated garden room
Off-street parking for two vehicles
Newly renovated throughout, contemporary kitchen and shower room
Only one shower room plus separate WC (single bathroom provision)
Cavity walls likely without added insulation — upgrade potential
A beautifully refurbished three-bedroom detached bungalow on a large plot in the sought-after Blacklands area of Hastings. The recent rear extension creates a bright, open-plan kitchen/breakfast and dining area that flows to a spacious lounge with garden views — ideal for single-level living or easy entertaining.
Practical features include a fully insulated garden office with power, a separate insulated garden room, utility space, gas central heating and UPVC double glazing. Off-street parking for two cars and a generous private garden with established planting provide excellent outdoor amenity and storage.
The layout suits downsizers or small families who value low-maintenance, single-floor accommodation close to Alexandra Park, St Helen’s Woods, local schools and bus routes. The home is newly renovated throughout, though it retains its mid-20th-century build characteristics and some upgrade opportunities remain.
Notable considerations: the property has one shower room plus a separate WC, and the original cavity walls are assumed to lack added insulation — buyers may wish to budget for potential insulation or energy-efficiency improvements. Council tax band is moderate and the home is offered on a freehold basis.
2 bedroom bungalow for sale in Grange Avenue, Hastings, TN34 — £359,950 • 2 bed • 1 bath • 865 ft²
3 bedroom detached bungalow for sale in Park Way, Hastings, TN34 — £400,000 • 3 bed • 1 bath • 732 ft²
2 bedroom semi-detached bungalow for sale in Elphinstone Road, Hastings, TN34 — £315,000 • 2 bed • 1 bath • 553 ft²
4 bedroom detached bungalow for sale in St. Helens Avenue, Hastings, TN34 — £595,000 • 4 bed • 2 bath • 1671 ft²
2 bedroom detached bungalow for sale in Park View, Hastings, TN34 — £425,000 • 2 bed • 1 bath • 816 ft²
2 bedroom detached bungalow for sale in Ashford Road, Hastings, TN34 — £360,000 • 2 bed • 1 bath • 743 ft²


























































































































