Affordable three-bedroom near schools, transport and local amenities.
Chain free freehold three-bedroom terrace on decent plot
Off-street parking driveway for one vehicle
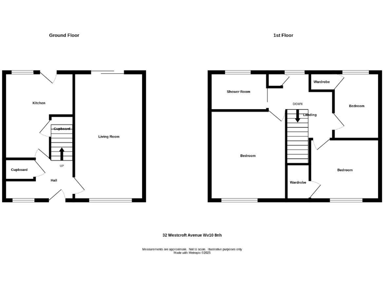
Deceptively spacious living room and breakfast kitchen
Single shower room; bathroom modernisation likely needed
Property requires general updating and cosmetic refurbishment
Very deprived area with high local crime rate noted
Convenient for shops, buses and Wolverhampton city centre
Fast broadband, excellent mobile signal; very cheap council tax
This chain-free, freehold terraced house offers practical three-bedroom accommodation at an affordable price for growing households. Set on a decent plot with off-street parking, the home is conveniently placed for local shops, buses and Wolverhampton city centre, with fast broadband and excellent mobile signal already available.
The interior is deceptively spacious, with a full-length living room, breakfast kitchen, three bedrooms and a shower room. The house was built in the mid-20th century and retains mid-century proportions, but will benefit from updating throughout — cosmetic refreshes and kitchen or bathroom improvements would add immediate value.
Buyers should note the property sits in a very deprived area with a high local crime rate and some neighbouring streets showing signs of economic pressure. School options nearby include several good-rated primaries and secondaries, though a couple of local schools are rated as requiring improvement.
Overall this is a sensible value proposition for a family or investor prepared to carry out light-to-medium refurbishment. The combination of no onward chain, freehold tenure, parking and excellent connectivity makes it a practical purchase with clear potential.
3 bedroom end of terrace house for sale in Durberville Road, Parkfields, Wolverhampton, WV2 — £145,000 • 3 bed • 1 bath • 1109 ft²
3 bedroom semi-detached house for sale in Underhill Lane, Underhill, Wolverhampton, WV10 — £210,000 • 3 bed • 1 bath
3 bedroom semi-detached house for sale in Highfield Avenue, Underhill, Wolverhampton, WV10 — £210,000 • 3 bed • 1 bath
3 bedroom terraced house for sale in St. Annes Road, Fordhouses, Wolverhampton, WV10 , WV10 — £185,000 • 3 bed • 1 bath • 741 ft²
3 bedroom terraced house for sale in Alamein Road, Willenhall, WV13 3TU, WV13 — £180,000 • 3 bed • 1 bath • 937 ft²
3 bedroom terraced house for sale in Belmont Road, Penn, Wolverhampton, WV4 — £210,000 • 3 bed • 1 bath • 905 ft²


























