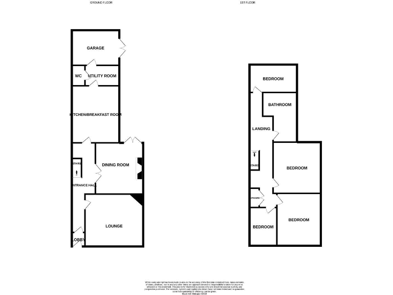
**Standout Features:**
- Spacious end-terrace property with four bedrooms
- Two generous reception rooms and a modern fitted kitchen
- Utility room and cloakroom for added convenience
- Private rear yard and garage with electricity
- Triple glazed windows and underfloor heating in kitchen and cloakroom
- No upper chain for a quick move-in
- Ideal for families seeking comfortable living with convenient amenities nearby
This substantial four-bedroom end-terraced house in the center of Seghill offers an inviting home for families with its spacious layout and modern conveniences. With two reception rooms and a well-equipped kitchen boasting underfloor heating and integrated appliances, the property is perfect for everyday living and entertaining. Upstairs, you'll find four generous bedrooms alongside a bathroom featuring a corner bath and separate shower cubicle.
The exterior boasts a private yard with double gates leading to a garage, enhancing the property's appeal for those needing parking or extra storage. The no upper chain situation adds to its attractiveness, allowing for a swift transition to new ownership. Positioned close to local amenities and excellent transport links, this home is a blend of comfort and practicality, making it an ideal family haven.
Investors and families alike will appreciate this affordable opportunity in a comfortable neighborhood. Whether you choose to move in or modernize it further, this property represents great value and potential. Don't miss out—opportunities like this in such a desirable area don't last long!
3 bedroom semi-detached house for sale in Station Road, Seghill, Cramlington, NE23 — £134,950 • 3 bed • 1 bath • 883 ft²
4 bedroom detached house for sale in Foxlea Walk, Seghill, Cramlington, NE23 — £349,950 • 4 bed • 2 bath • 1038 ft²
3 bedroom detached house for sale in Hatfield Drive, Seghill, Northumberland, NE23 — £280,000 • 3 bed • 2 bath • 1085 ft²
4 bedroom detached house for sale in Hazelmere Dene, Cramlington, NE23 — £315,000 • 4 bed • 3 bath • 862 ft²
4 bedroom detached house for sale in Whiteford Place, Cramlington, NE23 — £365,000 • 4 bed • 2 bath • 1883 ft²
4 bedroom detached house for sale in Birchwood Close, Seghill, NE23 — £325,000 • 4 bed • 2 bath • 1288 ft²










































































