Modern energy-efficient detached house with garage and gardens close to coast.
4 double bedrooms, two with en-suite bathrooms
Open-plan kitchen/family/dining with bi-fold doors to garden
Study/extra room suitable for nursery or home office
Integral single garage, private driveway, utility room
PV solar, SMART hot water and EV charging provision
LBTT paid available on select plots; fixed-price purchase
10-year NHBC warranty and two-year after-sales service
Broadband speeds slow locally; annual service charge £396.82
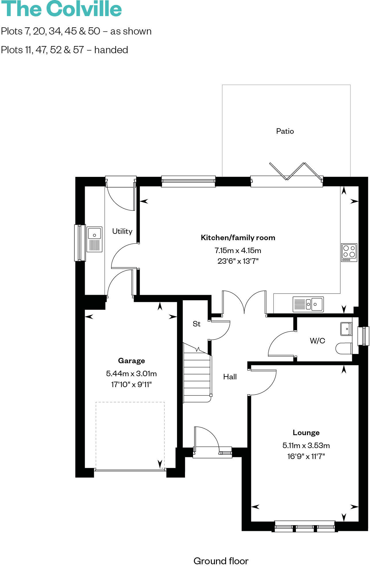
Deerpark Cottage at Longbanks Green is a modern four-bedroom detached home designed for family life. The ground floor features a large open-plan kitchen/family/dining area with bi-fold doors to the rear patio and garden, plus a separate lounge, utility room and integral single garage. Two bedrooms have en-suite bathrooms, there is a separate family bathroom and a study that can serve as a nursery or home office. The property is finished to Cala’s high specification with fitted wardrobes and Siemens appliances.
Energy efficiency is a clear strength: PV solar panels, app-controlled SMART hot water and EV charging provision reduce running costs and emissions. The home comes with a 10-year NHBC warranty, a two-year after-sales service and a 24-hour emergency response. Select plots include LBTT paid and a fixed-price purchase option, which simplifies budgeting and can reduce upfront cost.
Practical points to note: broadband speeds are reported as slow in the area, and there is an annual factor/service charge of £396.82 plus a £100 float fee. The home is new-build and average-sized at 1,685 sq ft, so buyers should expect a modern specification and standard room proportions rather than a period property’s character. Local amenities, coastal walking and regular train services to Edinburgh make this suitable for families wanting seaside living within commuting distance of the city.
5 bedroom detached house for sale in Bowmont Terrace,
Dunbar,
EH42 1QJ, EH42 — £574,995 • 5 bed • 1 bath • 1817 ft²
5 bedroom detached house for sale in Bowmont Terrace,
Dunbar,
EH42 1QJ, EH42 — £689,995 • 5 bed • 1 bath • 2088 ft²
4 bedroom detached house for sale in Bowmont Terrace,
Dunbar,
EH42 1QJ, EH42 — £664,995 • 4 bed • 1 bath • 1878 ft²
4 bedroom detached house for sale in 30 John Muir Gardens, Dunbar, EH42 1GA, EH42 — £299,995 • 4 bed • 2 bath • 1160 ft²
5 bedroom detached house for sale in Lochford Gardens, Dunbar, EH42 — £495,000 • 5 bed • 3 bath • 1845 ft²
5 bedroom detached house for sale in 6 Ironside Way, Dunbar, East Lothian, EH42 1ZL, EH42 — £450,000 • 5 bed • 3 bath • 1604 ft²






































































































































































