Three-bedroom recently refurbished semi with large garden and countryside views, chain-free..
Newly refurbished throughout, ready to move into
Large rear garden backing onto open countryside
Integral single garage plus wide driveway parking
Open-plan living/dining with garden access
One main bathroom plus downstairs cloakroom only
No added cavity wall insulation assumed (energy upgrade potential)
Slow broadband speeds in the area
Freehold and offered chain-free
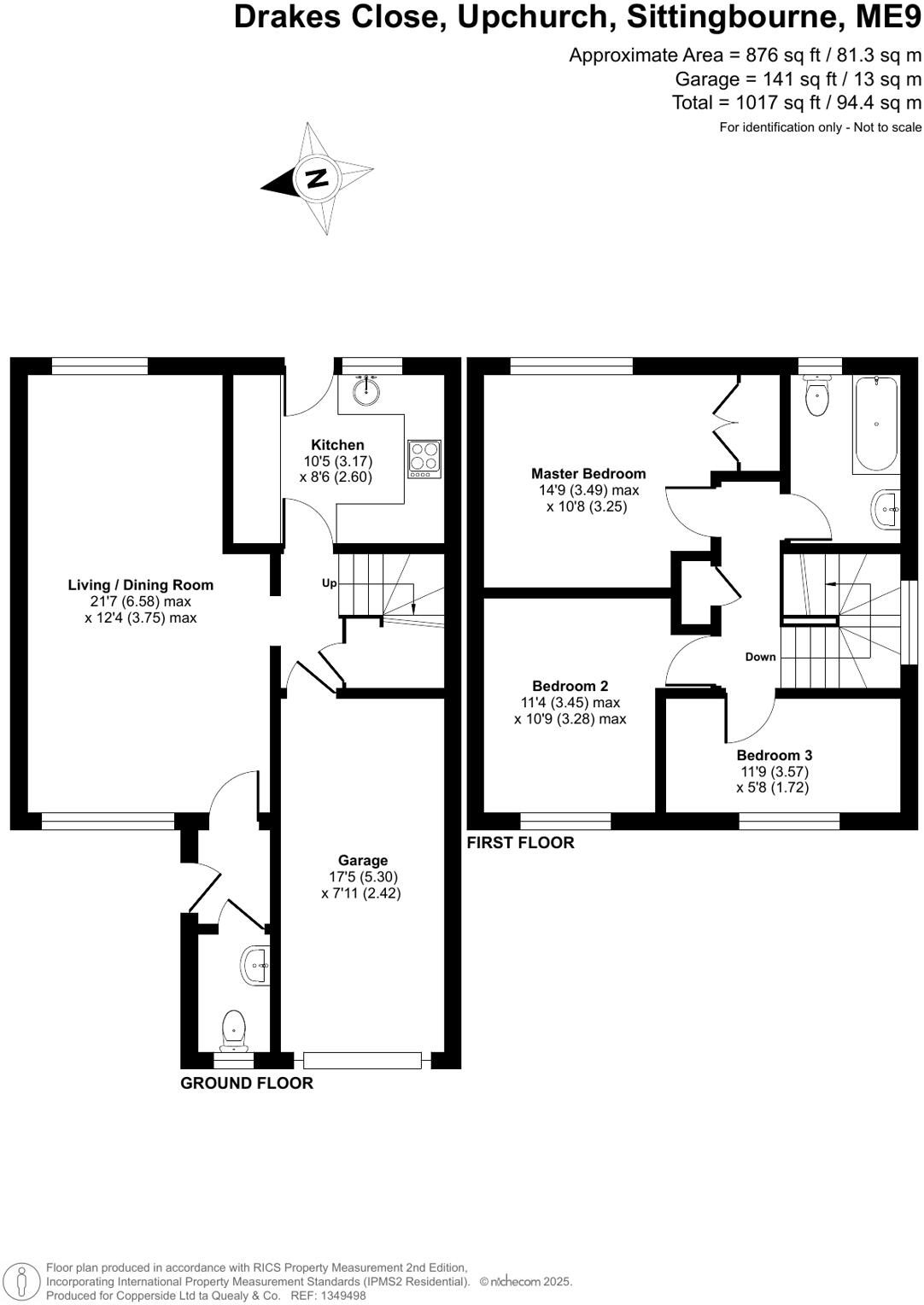
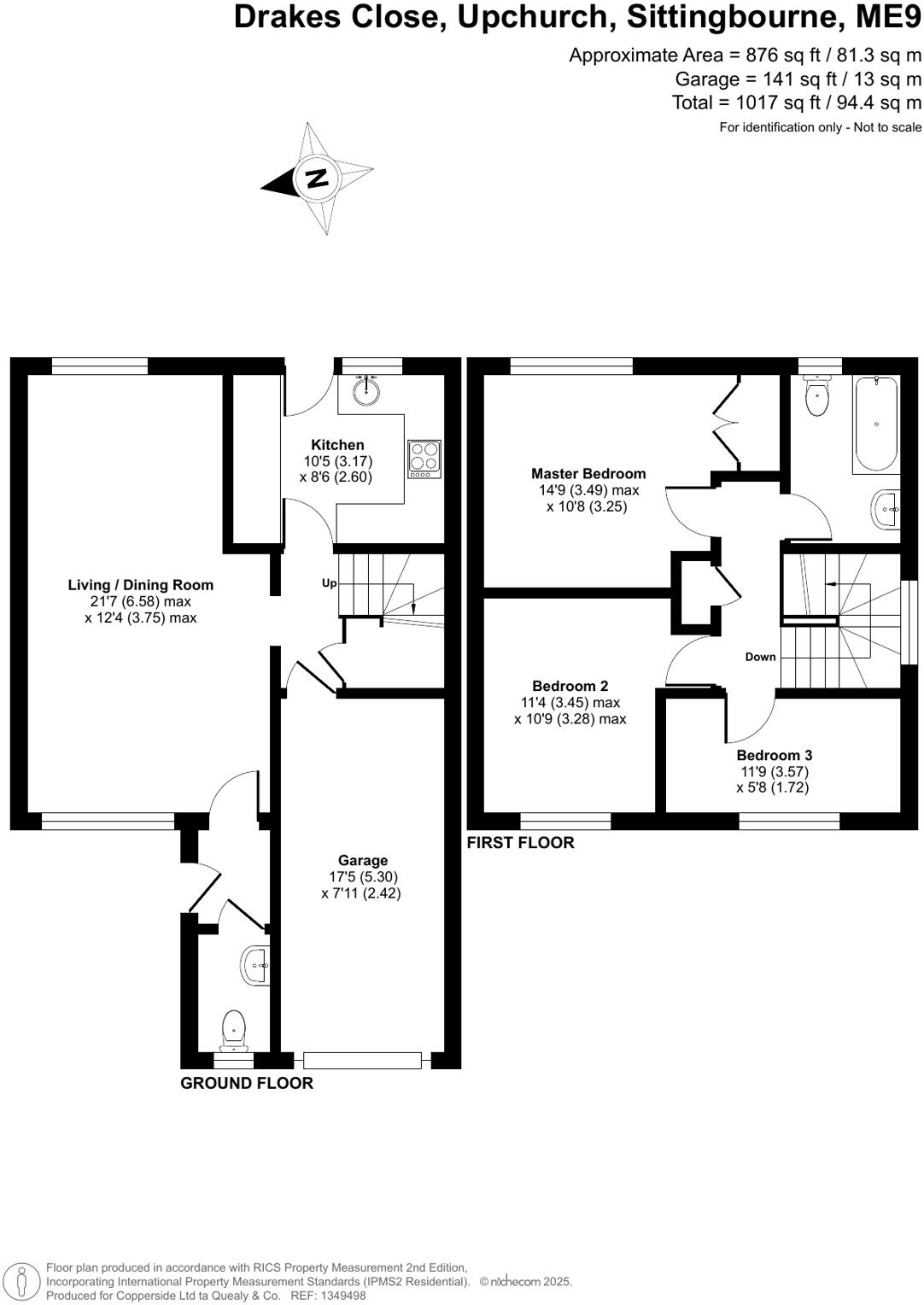
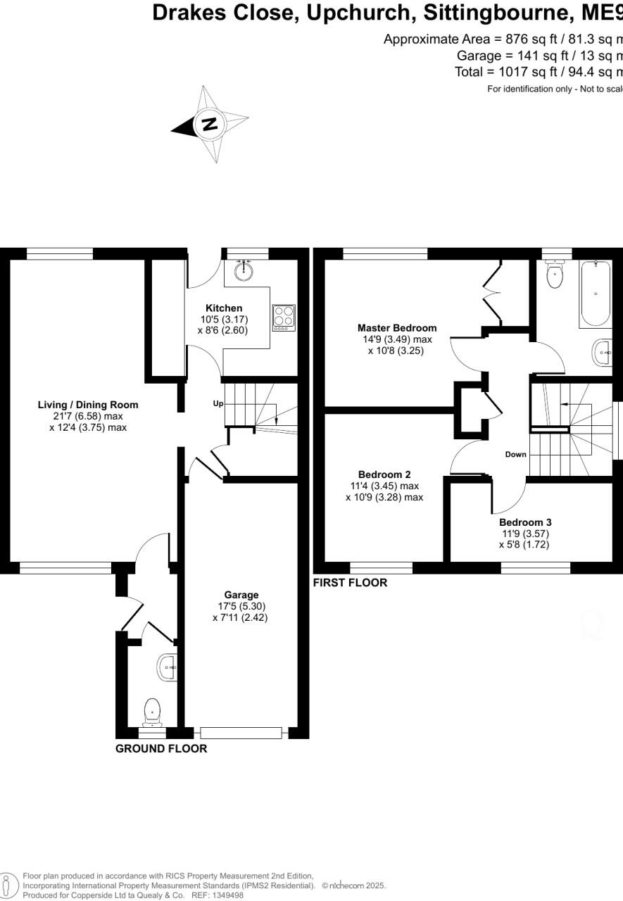
This newly refurbished three-bedroom semi-detached house in Drakes Close, Upchurch, offers low-maintenance, move-in-ready accommodation with generous outdoor space and countryside views. The bright living/dining area opens to a large rear garden backing onto open fields, giving a peaceful outlook for families who value space and privacy.
Practical features include an integral single garage, a wide driveway with multiple parking spaces, double glazing, and mains gas central heating with a boiler and radiators. Local amenities and several well-rated primary and secondary schools are within easy reach, and the village setting combines rural calm with convenient town-edge access.
Buyers should note broadband speeds are slow in the area and the cavity walls are assumed to have no added insulation, which could affect heating costs despite recent refurbishment. There is one main bathroom and a downstairs cloakroom only. Overall, this freehold, chain-free home suits families or buyers seeking a spacious, well-presented house with scope to improve energy efficiency over time.
3 bedroom semi-detached house for sale in Drakes Close, Upchurch, Sittingbourne, Kent, ME9 — £335,000 • 3 bed • 1 bath • 915 ft²
3 bedroom house for sale in Forge Lane, Upchurch, ME9 — £330,000 • 3 bed • 2 bath • 1249 ft²
3 bedroom semi-detached house for sale in Oak Lane, Upchurch, Rainham, ME9 — £425,000 • 3 bed • 2 bath • 1137 ft²
3 bedroom semi-detached house for sale in Chaffes Lane, Upchurch, Sittingbourne, Kent, ME9 — £385,000 • 3 bed • 1 bath • 962 ft²
3 bedroom semi-detached house for sale in Forge Lane, ME9 — £330,000 • 3 bed • 2 bath • 1663 ft²
3 bedroom semi-detached house for sale in Crosier Court, Upchurch, Sittingbourne, ME9 — £375,000 • 3 bed • 2 bath • 1152 ft²














































































































































































