Comfortable three-bedroom home near park and seafront, ready to move into.
Corner plot on level ground, short walk to park and beach
Three bedrooms, one family bathroom (shower and bath)
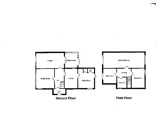
Large bay lounge, separate dining room and conservatory
Fitted kitchen, utility room, cloakroom and boiler room
Single garage used as workshop; driveway parking for two cars
Gas central heating, double glazing; Energy E43 (potential B81)
Cavity walls noted as no added insulation — upgrade recommended
Located in area with above-average crime and high deprivation
This traditional 1930s semi-detached house sits on a level corner plot within easy walking distance of village amenities, Min-y-Don Park and the beach — a practical location for families wanting local green space and shops. The current owners have upgraded many rooms, so the house offers ready-to-enjoy living with modern kitchen units, a contemporary bathroom and double glazing throughout.
On two floors the layout includes a generous bay-fronted lounge that opens to a conservatory, a separate dining room, fitted kitchen with utility and cloakroom, plus three bedrooms upstairs. Practical features include a single garage currently used as a workshop, off-street parking for two cars, gas central heating on radiators and an energy rating currently E43 with potential to reach B81 after further improvements.
Important facts and drawbacks: there is one bathroom serving three bedrooms, the property sits in an area with above-average crime and high local deprivation which may concern some buyers, and the cavity walls are recorded with no added insulation (improvement opportunity and possible cost). The garage is a concrete sectional type and the plot is finished mostly with artificial grass, which reduces maintenance but limits planting potential.
Overall this is a well-presented family home with sensible living space, off-street parking and scope to improve energy performance and insulation. It will suit buyers seeking a comfortable, low-maintenance home close to parkland and seafront, or families looking for straightforward accommodation with potential to personalise and upgrade further.
3 bedroom semi-detached house for sale in Windsor Drive, Old Colwyn, Colwyn Bay, Conwy, LL29 — £260,000 • 3 bed • 1 bath • 1259 ft²
3 bedroom detached house for sale in St. Catherines Drive, Old Colwyn, Colwyn Bay, Conwy, LL29 — £240,000 • 3 bed • 1 bath • 1199 ft²
4 bedroom detached house for sale in Dingle Hill, Colwyn Bay, LL29 — £337,500 • 4 bed • 2 bath • 1776 ft²
3 bedroom semi-detached house for sale in Victoria Road, Old Colwyn, Colwyn Bay, LL29 — £245,000 • 3 bed • 1 bath • 1458 ft²
4 bedroom semi-detached house for sale in Cambria Road, Old Colwyn, LL29 — £269,950 • 4 bed • 2 bath • 1561 ft²
3 bedroom semi-detached house for sale in Hesketh Road, Old Colwyn , LL29 — £234,950 • 3 bed • 1 bath


















































































