Deceptively spacious three-bed bungalow with large plot and excellent parking — ideal for families.
Detached three-bedroom bungalow on a large corner plot
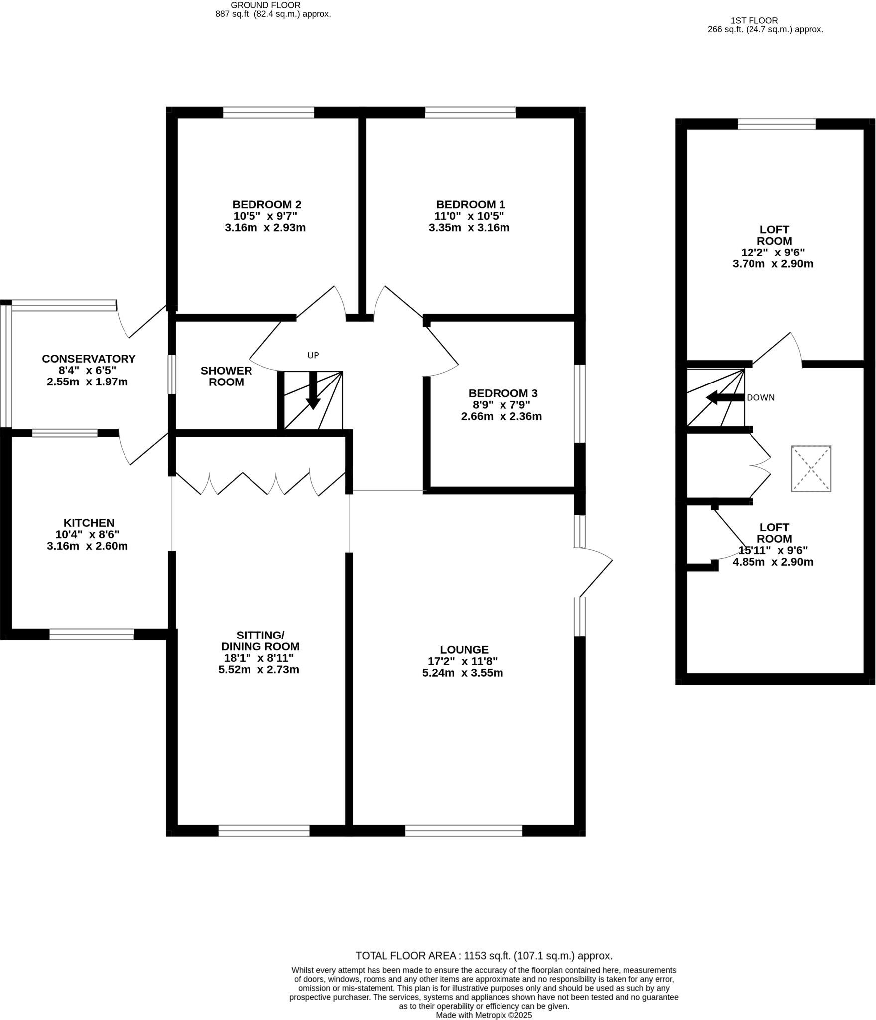
This detached three-bedroom bungalow sits on a substantial corner plot in Sonja Crest, Immingham, offering spacious single-storey living with practical outdoor space. The bay-fronted lounge, linked kitchen-diner and adjoining sunroom/utility create a flexible family layout; one bedroom is currently used as a reception room, providing scope for a home office or formal dining. The property benefits from fast broadband, very low local crime and good nearby schools, making it well suited to families seeking convenience and safety.
Outside, the large plot delivers plentiful off-road parking, two driveways capable of accommodating multiple vehicles or a caravan, and a detached garage. Gardens are intentionally low-maintenance with paved, gravel and patio areas, plus a vegetable plot and shed — good for easy upkeep or further landscaping. There is potential to extend or reconfigure subject to planning consent, and a loft space is accessible via an internal staircase for additional storage or conversion (subject to checks).
Practical considerations: the home has a single modern shower room, so households needing more bathroom capacity should plan accordingly. While the interior reads well and requires only minor modernisation in places, any buyer should verify tenure details (freehold stated subject to solicitors’ confirmation) and explore planning rules if pursuing extensions. Utilities are connected and council tax sits in band C, offering affordable ongoing costs.
Overall this bungalow offers a peaceful, convenient family base with generous outdoor parking and low-maintenance gardens, plus realistic potential to adapt the layout to changing needs. Viewings will best show the deceptive internal space and the benefits of the corner plot.
3 bedroom detached bungalow for sale in Stallingborough Road, Immingham, DN40 — £280,000 • 3 bed • 2 bath • 1050 ft²
3 bedroom detached bungalow for sale in Oaklands Road, Immingham, DN40 — £180,000 • 3 bed • 1 bath • 790 ft²
3 bedroom detached bungalow for sale in Balfour Place, Immingham, DN40 — £180,000 • 3 bed • 1 bath • 708 ft²
3 bedroom bungalow for sale in Fair Isle Rise, Immingham, DN40 — £215,000 • 3 bed • 1 bath • 1094 ft²
3 bedroom detached bungalow for sale in Stainton Drive, Immingham, DN40 — £160,000 • 3 bed • 1 bath • 701 ft²
3 bedroom detached bungalow for sale in Valda Vale, Immingham, DN40 — £220,000 • 3 bed • 1 bath • 1028 ft²


























































